Проектируем перекрытие первого этажа
Для моего проекта выбраны перекрытия из двутавровых деревянных балок высотой 200 мм, соответственно наружный периметр, сдвоенные-строенные лаги и проставки будут проектироваться из доски сечением 38 х 200 мм. В случае если Вы не можете использовать доски (например, при высоте двутавровых балок или ферм перекрытий 350- 400 мм) все эти элементы проектируются из двутавровых балок и каркасных ферм. Но так как для моего проекта максимальный пролет не превышает длину 3,75 м, будем использовать наиболее доступные двутавровые балки в сочетании с досками. Шаг лаг подбираем под ширину листа внешней обшивки платформы 1219 х 2438 мм с учетом рекомендуемого зазора 3-4 мм. Чтобы первый лист попадал на всю толщину внешней доски платформы, сокращаем первый шаг на половину толщины лаги 80/2= 40 мм + 2 мм зазор = 568.5 мм, далее шаг лаг стандартный 610.5 мм.
Этот прием будет применяться при проектировании стен каркасного дома и кровельной обшивки. С помощью нехитрого приема 610.5 Enter-*количество лаг-Enter за одну операцию устанавливаем лаги с заданным шагом. Таким же приемом можно поставить лаги с шагом 407 мм или любым другим. Многие материалы в Северной Америке производятся с учетом быстрого проектирования и строительства каркасных домов. Направления лаг обычно выбираются в направлении наименьшего пролета комнат, шаг подбирается согласно готовых таблиц.
В проекции внутренних стен устанавливаем сдвоенные доски
Также обращаем внимание на места, где будут опираться мощные несущие стойки стен. В этих местах устанавливаем дополнительные блоки между лагами. Данную группы элементов можно проектировать после стен, ориентируясь на проекцию несущих стоек
На рисунке ниже я отметил эти элементы. Лаги создаются как компоненты, после окончания проектирования объединяем все элементы перекрытия в слой. Количество лаг Вы можете пересчитать руками либо применить плагин Cut List;
Данную группы элементов можно проектировать после стен, ориентируясь на проекцию несущих стоек. На рисунке ниже я отметил эти элементы. Лаги создаются как компоненты, после окончания проектирования объединяем все элементы перекрытия в слой. Количество лаг Вы можете пересчитать руками либо применить плагин Cut List;
Шаг № 7 Стропильная система каркасного дома
Конструкцию крыши для каркасного дома можно выбрать любой, но мы рассмотрим более простой и бюджетный вариант — двухскатной.
Сечение стропил выбирается с учетом следующих параметров:
- Длины стропильных ног и шага их установки
- Уклона кровли (чем он меньше, тем меньше нагрузка на поверхность, чем он больше тем больше ветровые нагрузки. Оптимальным считается наклон кровли 30-35 градусов)
- Нагрузки (снеговые, ветровые и пр.), которые установлены в нормативных документах для каждого региона страны
- Вида материала, которым будет покрываться кровля, а также его веса и размера
Выбрать сечение можно двумя способами: обратиться к строительным таблицам или провести самостоятельный расчет.
Для начала надо изготовить шаблон стропильных ног. Делается это так:
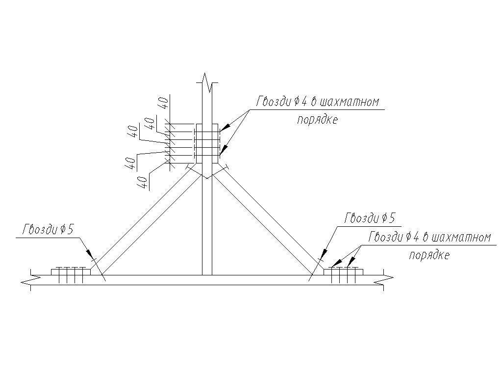
Крепление стропильных ног к коньку
- Берут две доски и соединяют их внахлест под углом 90 градусов, фиксируя гвоздем в верхней точке
- Шаблон поднимают наверх и устанавливают края досок на мауерлаты
- Регулируя расположение досок, находят нужный скат. При этом их края должны на 40-60 сантиметров выходить за уровень стен, чтобы в будущем проще устроить систему водостока. Если длины досок не хватает, можно сшить по две на земле
- Когда необходимый уклон скатов получен, надо между стропильными ногами прибить поперечную перекладину, тем самым зафиксировав угол. В это же время нужно обозначить карандашом линию среза стропил, если они будут фиксироваться встык и срезы под прямым углом в местах присоединения ног к мауерлатам
- Все расчеты должны быть сняты с максимальной точностью
Стропильная система (Лари Хон)
После того, как шаблон приготовлен, по нему надо собрать две пары стропил, которые будут монтироваться по краям. При необходимости ноги наращиваются. Состыковывать их можно вполдерева толстыми болтами или шпильками, что безопасней, или при помощи двух гвоздей, вбитых под разным углом. Между двумя ногами одного стропила надо установить поперечину. После делаются запилы в стропильных ногах в местах примыкания к мауэрлату.
Крепление стропил к мауэрлату
Так же можно изготовить так называемые фермы на гвоздевых пластинах, которые позволят обойтись без центральной стены, но как и всегда все требует расчетов.
Чертеж стропильной фермы
Следующий шаг – подъем стропил на крышу и их фиксация на мауэрлатах (балках), как показано на картинке.
Когда две пары боковых стропил установлены, между ними надо натянуть веревку. Она служит маяком, по которому проверяется уровень. Далее между стропилами измеряется расстояние и делится на 60 или 80, в зависимости от шага, с которым будет вестись монтаж.
После проведения расчетов на земле собирается нужное количество стропил. Затем они поднимаются наверх, и устанавливаются с выбранным шагом по всему периметру. Между стропильными фермами прибивается по две доски для фиксации.
После сборки каркаса дома следует покрыть крышу, либо соорудить временную кровлю из тента или банеров.
Готовый силовой каркас дома с крышей
На этом каркас Вашего дома готов. Силовой каркас дома в 100кв. м. под силу собрать одному человеку (не рекомендуется) за летней период работая по выходным и вечерам. А весь дом можно построить и за меньший срок имея пару помощников.
CyberMotion 3D-Designer
В программе CyberMotion 3D-Designer объемное изображение строится только после создания чертежей CyberMotion 3D-Designer — это профессиональный софт для качественного пространственного моделирования. Эта программа имеет очень удобный интерфейс, много шаблонов и продуманную справочную систему, которая даёт исчерпывающие вопросы и понятна даже новичку. Примечательно, что объёмное изображение строится только после создания чертежей: вида сверху, сбоку и спереди, только после этого 3D объект будет представлен. CyberMotion 3D-Designer это скорее удобный инструмент 3D анимации и объектов.
Что нужно предусмотреть в чертеже для стен каркасного дома?
Строительство стен в каркасном и каркасно-щитовомдоме подразумевает то, что в комплекте чертежей в обязательном порядке должны содержаться чертежи планировки помещений как всего этажа, так и отдельных помещений
И совершенно не важно одноэтажный это дом, с мансардой или гараж
На них указываются места установки перегородок, которые образуют комнаты и другие помещения.
Действительно, будет проще изготовить несколько блоков с одинаковыми размерами, чем такое же количество оконных или дверных конструкций по разным.

В рабочих чертежах необходимо указывать размеры всех применяемых деталей. Но для ясности чертежа допускается указание линейных параметров простых деталей в спецификации. То есть на чертеже у этой детали будет указан ее порядковый номер по спецификации, а все ее параметры (размеры, количество) будут записаны в строках спецификации. Надо сразу отметить, что в отличие от машиностроительных чертежей строители более снисходительно относятся к размерам деталей и размерным цепочкам. При определении предельных размеров, а также допусков на них целесообразно руководствоваться ГОСТ 21779–821 и ГОСТ 25347–82.
На чертежах должны быть указаны места расположения всех дополнительных элементов конструкции каркаса – укосины, упоры. При этом должны быть указаны способы их крепления, как на фото.

В отношении лицевой части здания чертеж должен содержать максимально допустимую информацию о размещении стоек, оконных блоков, присоединительных размеров поперечных балок.
Профессиональные проектировщики понимают, что на чертеже должно быть ровно столько размеров, сколько необходимо для выполнения работ и контроля уже сделанных. Излишнее количество нанесенных размеров может привести к путанице и ошибкам.

Кроме того, существует правило, которому следуют инженеры все отраслей. Вся техническая документация должна толковаться однозначно и при ее применении не должно быть разночтений.
Сравнение: Обычный чертёж и наши чертежи
Для удобства и скорости работы, мы не стали, как это делают все, делать отдельную комплектовочную ведомость на весь дом, так как работать по ней крайне неудобно. Представьте, как собирать дом, если для того, чтобы собрать перегородку длиною всего метр-два, вам придётся искать её комплектность в книге из почти ста! листов. Чтобы у вас не было таких проблем, мы, все необходимые материалы и их точные размеры, указали непосредственно на странице, где нарисован тот объект, который вы будете собирать в настоящее время, вам не придётся тратить уйму времени, чтобы найти и рассчитать, что вам нужно, всё указано на схеме – просто и удобно. В любом случаие, ещё дополнительно идёт смета к проекту.
Обустройство крыши
Принципиальных различий в монтаже крыши каркасных зданий домов других типов, например, выполненных из кирпича или бетонных блоков, нет. При этом обустройство крыши каркасного дома даже требует меньших финансовых затрат и физических усилий. В первую очередь это обусловлено простотой крепления крыши к стеновым конструкциям.
Несмотря на относительную простоту, монтаж крыши – крайне ответственный и значимый этап строительства дома. Очень часто на него уходит достаточно много времени, особенно в том случае, если подобного опыта у выполняющих работу людей ранее не было. В этой связи браться за обустройство крыши собственными усилиями стоит лишь при условии, что планировка дома не очень сложная, как и конфигурация самой крыши.
Особенности, которыми отличаются каркасно-щитовые дома
Для того чтобы понять, что делает такими популярными среди застройщиков чертежи каркасных домов, необходимо разобрать некоторые их особенности:
Маленький вес, которым обладает дачный каркасный дом 4 на 6 метров, даже если он будет двухэтажным коттеджем или с мансардой. Ни для кого не секрет, что при возведении частных домов, львиную долю стоимости сметы на строительство занимает заложение фундамента. Как утверждают специалисты в области ценообразования и строители, стоимость основания под дом может достигать и тридцати процентов от стоимости всего строительства. Но такие затраты ждут лишь тех, кто собирается возводить капитальные строения, к примеру, дом из кирпича. А вот что касается каркасных коттеджей, то здесь дела обстоят более обнадеживающе.
Проекты и чертежи каркасных домов с мансардой, как правило, предполагают возведение облегченных типов фундаментов. Это соответственно будет способствовать тому, что цена на строительство уменьшится. Обычно в проекты закладывается свайный фундамент. Кроме этого, легкий вес каркасных домов способствует тому, что нагрузки на грунт будут минимальными. Следовательно, двухэтажный каркасный дом или одноэтажный коттедж с мансардой могут быть возведены на участках с любым типом грунта. Несмотря на это, если есть неблагоприятные условия на участке, необходимо заказать чертеж и проект для того, чтобы специалисты оценили все возможные риски. Цена строительства из-за этого, конечно же, возрастет, однако, можно будет не беспокоиться о проблемах в будущем;
- Простота монтажных работ. Возведение каркасных домов производится по очень простой технологии, исключающей любые мокрые процессы, соответственно цена на монтаж будет низкой. Монтаж заключается в конструировании каркаса, на который впоследствии крепится обшивка. Эти работы могут быть выполнены бесплатно своими руками, и совсем необязательно для этого нанимать профессиональных строителей. Пошаговая инструкция по строительству может быть легко найдена в интернете. Собирать такие дома можно на ограниченной площади, что очень привлекает строителей, занимающихся продажей каркасных домов. Такая технология строительства домов позволяет выполнять любые желания застройщика, и постройка может быть практически любой формы;
Дачный двухэтажный дом или одноэтажный дом с мансардой не дает усадки. Усадка происходит из-за наличия в деревянных строительных материалах влаги, что является серьезным недостатком жилых домов из дерева. Из-за этого отделочные работы могут начинаться лишь по прошествии некоторого времени, которое в определенных случаях может достигать и одного года.
Что касается каркасных домов, то здесь отделочные работы могут начинаться почти сразу;
Отличные эксплуатационные качества и долгий срок службы. Каркасные дома очень хорошо держат тепло, что способствует экономии тепловой энергии. Отапливать каркасные дома можно в экономичном режиме, то есть основное время лишь поддерживать тепло. Стены каркасных домов «дышат», поэтому микроклимат в жилище будет очень комфортным для домочадцев. Благодаря этому, теплоноситель может сильно не нагреваться, а также может быть снижено время работы кондиционеров в жаркую погоду. Отделка стен может проводиться любым отделочным материалом. Каркасная конструкция не предполагает деформации при движении грунта или при просадке под собственным весом. Если производится перепланировка в каркасном доме, можно не опасаться за неравномерность распределения нагрузки на фундамент;
- Низкая стоимость монтажа. Как уже отмечалось выше, для свайного фундамента необязательно тщательно изучать свойства грунта, отчего повышается цена строительства. Кроме этого, трудозатраты возведения каркасного дома гораздо меньше по сравнению, к примеру, с кирпичными постройками. Также стоит отметить низкую стоимость строительных материалов, из которых собирается фундамент и каркас строения. Каркасные здания можно без труда отремонтировать. Например, при необходимости добавления в конструкцию основания дополнительной сваи можно с минимальными затратами выполнить эту процедуру, что не скажешь о ремонте ленточных фундаментов, где цена ремонта ощутимо бьет по карману. Что касается ремонта стен, то здесь дела также обстоят гораздо проще, нежели в случае с ремонтом домов из сруба или кирпичных домов.
Монтаж потолка и установка стропил
Монтируя потолок, следует точно соблюдать взаимное расположение стоек и лагов: разбег не должен превышать 5 см. Для выравнивания концов использовался натянутый шнур. Чтобы во время укладки доски, связующей все лаги, можно было производить корректировку точности, под торец доски была положена шпилька, позволявшая легко двигать доску на небольшие расстояния. Уложенные лаги фиксировались распорками, установленными в три линии с шагом 1,5 м. Длина распорок была чуть больше требуемой для того, чтобы сохнущие доски не ослабляли конструкцию. Потолок планируется делать натяжным, как тут: http://potolkilider.ru/informatsiya/natyazhnye_potolki_murino/
После определения снеговой нагрузки (240 кг/м2) и веса кровли (40 кг/м2) для стропил была выбрана качественная доска 50х200. Поскольку конёк не был предусмотрен, то ноги сбивались попарно в треугольник и соединялись гвоздевой пластиной с одной стороны, а с другой – фанерным треугольником. Ширина опорного запила определялась по мерной доске, длина которой была равна ширине перекрытия. Для придания жёсткости каждая пара стропил дополнительно фиксировалась стяжкой на уровне 2,5 м от пола и специальной перемычкой под углом 30 градусов. Изнутри стропила получили дополнительную страховку в виде металлической ленты, крепившейся к лагам и натянутой по диагонали крестом. Чтобы облегчить подъём конструкции использовался шнур.
Под излишние свесы крыш пришлось сколачивать «лестницу», поскольку вынос балок не был продуман. Фронтон с шагом 40 см соответствовал расположению стоек на крыше.
Большая крыша создавала значительную парусность, поэтому для страховки следовало пропустить металлическую ленту от стропил по стойкам к обвязке до монтажа плит OSB. Этого сделано не было, пришлось стропила крепить к стойкам с внутренней стороны. Так же поступил и с лагами, которые зафиксировал с обвязкой. Лучше использовать металлическую перфорированную ленту.
Навес для веранды и крыша дома составили единое целое. Столбы и балки изготовлены из бруса 100х150. Шаг между столбами – 2 м, балка имела выступ 60 см для формирования свеса крыши. Чтобы конструкция не гуляла, для придания жёсткости использовались оконные уголки 37х37.
Время, затраченное на монтаж стропил – 10 человеко-дней.
Начало: проект, разрешение
Пример проекта
Существует огромное количество проектов каркасно щитовых домов. Основные их отличия – размер и площадь строения, этажность, планировка, наличие или отсутствие дополнительных пристроек.
Но рекомендуемый порядок построения почти не изменяется, несмотря на этажность, размеры потенциального жилища и прочие его особенности.
По существующему порядку, перед началом возведения любого жилого строения, будущие хозяева должны получить разрешение на проведение всех необходимых мероприятий, для чего им приходится обращаться в соответствующие государственные инстанции. Обычно это административные органы данного населенного пункта.
Любому дому необходим план, или проект. Его можно заказать у профессионалов, в специализированной организации, а можно составить самостоятельно, своими руками: главное, чтобы он имелся. Иначе существует риск возникновения разнообразных затруднений, что, скорее всего, станет причиной последующего удорожания объекта.
В открытых источниках можно отыскать оптимальный вам проект каркасного дома для возведения своими руками.
Среди многообразия представленных решений не составит труда подобрать подходящий именно вам. Он станет главным ориентиром для строительства.
Возводим каркасные стены дома из досок
Сборка деревянных стен каркасного дома проводится либо на месте (вертикально), либо на полу внутри будущего здания. Это позволяет не ошибиться с длиной стены, когда человек будет собирать собственный каркасный дом.
Устройство каркаса проводят в таком порядке:
- Делают из деревянных брусков рамку по длине всей стены. Этот прямоугольник по высоте должен быть на 15 см меньше, чем высота будущего потолка (чтобы поместились пол и верхняя обвязка). Ширина бруса – это ширина стены, поэтому рекомендовано сечение 15х15 см. Впрочем, для одноэтажного дома (в т.ч. без мансарды) хватит и 10х10 см.
- Укрепляют каркас стойками. Стойки – это бруски такого же размера, закрепленные внутри каркаса на равном расстоянии. Также из досок-перемычек формируют дверные и оконные проемы. Закрепляют стойки металлическими уголками или методом врубки.
- Устанавливают 2 продольных перегородки, прибивая к рамке и каждой стойке. Одна – на небольшом расстоянии от пола, другая – на таком же от потолка.
- Ставят каркас там, где будет находиться стена дома из досок. Конструкция легкая, поэтому поднять ее не составляет большого труда.
- Прикрепляют устройство к полу, а также подпирают укосами, чтобы повысить устойчивость на время работы.
- Скрепляют соединения перегородок, стоек и рамки металлическими уголками.
- Укладывают внутрь конструкции утеплитель.
- Обивают с обеих сторон ОСБ-плитами или фанерой.
Самое сложное в возведении каркасных домов на участке своими руками – это всевозможные размеры. Их стоит рассмотреть подробнее.
Выбираем шаг установки стоек
Сборка прочной каркасной стены невозможна без правильно выбранного шага между стойками. Его подбирают под толщину (и, соответственно, вес) потолочного перекрытия. Тут есть следующие варианты правильной установки стоек, обозначенные в СНиП:
- толщина перекрытия меньше 230 мм – шаг между стойками не более 2 м;
- толщина от 230 до 280 мм – шаг до 1,7 м;
- толщина более 280 мм – шаг до 1,5 м.
Конструкция стены любого каркасного дома получится надежной только при соблюдении этих норм. Вообще в СНИП содержатся многие основы каркасного строительства домов, так что этот свод нормативных актов стоит прочесть перед возведением здания.
Установка укосов и раскосов
Укосы в каркасном доме Чтобы собрать скелет надежного каркасного дома, нужно ставить временные укосы. Они подпирают стойки снизу для того, чтобы каркасы были расположены строго вертикально. После того, как была произведена обшивка каркасов, укосины убирают. Использование укосов позволяет самому построить каркасный дом на участке, не допустив кривизны стен.
Если человек, желая построить дачный дом из досок своими руками, использует вагонку или другие виды наборных панелей – вместо укосов устанавливаются раскосы. Они постоянны и ставятся под такими же углами. Но раскосы нужно ставить еще и сверху, прибивая к потолочным перекрытиям. Этот метод не даст стойкам «съехать» при обшивке.
Монтаж углов каркасного дома
Хороший каркас для дачного дома нуждается в правильных углах. Самый простой способ создать угол – это установить одну из сторон каркаса стены (брус) прямо туда. Но тогда углы будут холодными, что в России становится большой проблемой.
Есть 2 варианта монтажа углового соединения:
- Расположить стыкующиеся каркасы так, чтобы в углу был зазор шириной 15-20 см. Этот зазор утеплить изоляционным материалом.
- Состыковать каркасы прямо в углу, но при этом дополнительно утеплить поверх обшивки. Также желательно еще раз утеплить углы в конце строительства, во время внутренних отделочных работ. Это поможет правильно построить каркасный дом на участке и избежать проблем с сохранением тепла внутри помещения.
Кроме того, устройство стен каркасного дома в деталях подразумевает, что на углы будет идти большая нагрузка. Поэтому их лучше делать из нескольких брусков, а не из одного.
Особенности дома 6 на 6
Каркасный дом в своей основе имеет каркас, на который и приходится основная нагрузка. В связи с этим стены можно сделать тоньше, чем увеличить внутреннюю полезную площадь дома.
На каркас крепятся панели или более крупные щиты, поэтому такие дома могут быть из СИП-панелей или каркасно-щитовыми. В целом устройство элементов схоже – между 2 деревянными «пластинами» закладывается слой утеплителя, после чего они монтируются на каркас.
СИП-панели имеют меньшие размеры и представляют собой 2 ДСП панели (фанеры или фиброцемент), между которыми заключен утеплитель (пенопласт или минвата). Обычно имеет меньшие размеры по сравнению со щитами, поэтому для монтажа не требуется привлечения спецтехники.
Щиты собираются на заводе и представляют собой многослойный пирог», включающий наружную и внутреннюю стороны, между которыми проложен утеплитель и пароизоляция.Нередко такие щиты имеют наружную облицовку и черновую внутреннюю отделку. Собирать каркасно-щитовые дома быстрее, однако, из-за большего веса элементов усложняется транспортировка, для крепления их к каркасу нередко требуется кран.
Щиты могут быть выполнены в виде укрупненных частей дома – в таком случае они бывают глухими и оснащенными дверными и оконными проемами. Кроме того, каркасное строительство может вестись с применением панелей в разобранном виде – на стройплощадку доставляются пронумерованные элементы, которые собираются вручную. Все слои (утепление, гидро- и пароизоляция) накладываются своими руками поочередно.
Особенностью каркасного дома 6х6 м является его небольшой вес, что позволяет отказаться от сложного, имеющего дополнительное армирование фундамента. Достаточно будет мелко заглубленного ленточного, свайного или плитного оснований. Подобного рода фундаменты позволяют вести строительство даже на подвижных грунтах. Приступать к отделке можно сразу после строительства – дом не дает усадки.
Отличительной чертой домов на каркасе является высокая скорость возведения и возможность круглогодичного монтажа (исключение – организацию фундамента лучше вести в теплое время года). Подобные строения собираются по принципу детского конструктора. После предварительного проектирования на заводе под конкретные чертежи изготавливаются элементы, которые пронумеровываются и доставляются на стройплощадку.
Благодаря использованию минеральной ваты или пенополистирола удается добиться высокой теплоэффективности строения, чем снизить затраты на отопление. Легкость фундамента, доступность материалов, минимум затрат на строительство и привлечение рабочей силы – все это обуславливает меньшую себестоимость строительства.
Каркасный дом своими руками: пошаговая инструкция, достоинства и недостатки самостоятельного строительства
Что такое каркасный дом? Это действительно находка для домашнего мастера. Ведь даже без опыта строительных работ (при ответственном подходе) можно возвести такую постройку своими руками за 3-4 месяца. По ходу статьи мы подробно рассмотрим технологию работ, но для начала разберёмся, какими достоинствами и недостатками обладают такие строения. Для удобства нашего Уважаемого читателя изложим плюсы и минусы каркасного дома в табличной форме.
| Достоинства | Недостатки |
| Быстрое возведение. Если нанимать профессиональных строителей, то «подъём» от фундамента до конька крыши составит 2-3 месяца, что в 3-4 раза быстрее, чем при выполнении того же объёма работ с кирпичным домом. Самостоятельно поднять данный дом удастся за 3-4 месяца. | Главной проблемой таких домов является пожароопасность, однако эту проблему можно решить путём использования различных противопожарных пропиток, которых сегодня на прилавках достаточно много. |
| Экономия времени и средств на фундаменте. Для каркасного строения не требуется капитальной опоры за счёт малого веса. Вполне достаточно свайного-винтового фундамента. | Гниение древесины. Это происходит при неправильном хранении стройматериалов или их неправильной сушке. Хорошую древесину можно обработать спец. составом, которые также в наличии на прилавках магазинов. |
| Не требуется время на усадку. Кирпичный дом после возведения должен простоять около года, прежде чем можно будет приступать к отделке. Здесь же этого времени не требуется. | Слабая шумоизоляция. Эта проблема также решаема при помощи наружной отделки. Неплохо для этой цели подходит пеноплекс, который вдобавок обеспечит дополнительную теплоизоляцию. |
| Нет необходимости нанимать технику. Материалы, используемые при строительстве, достаточно легки, все работы выполняются вручную. | |
| Устойчивость – каркасным постройкам не страшны осадки грунта или даже подземные толчки. | Необходимость замены утеплителя хотя бы раз в 30 лет. Но это тоже нельзя назвать катастрофой. При должном подходе работа займёт не более недели. |
| Такой дом лучше, чем кирпичный, удерживает тепло, коммуникации легко прячутся под обшивкой, что делает их замену или ремонт довольно простым. | Грызуны. Это действительно проблема, с которой придётся побороться, особенно, если в качестве утеплителя выбран пенопласт, в котором они любят устраивать норы. Проблема решается применением такого утеплителя как эковата. Причём, если дом двухэтажный, достаточно утепления эковатой только первого этажа. |
| Простота перепланировки – внутренние стены можно свободно передвигать так, как требуется хозяину. Внешний вид, форма дома могут быть абсолютно любыми – всё зависит от фантазии будущего хозяина. | |
| Если материалы качественные и в течение срока эксплуатации за домом обеспечен надлежащий уход, он может простоять до 100 лет. | Плесень и грибок. Такая неприятность может возникнуть при неправильно смонтированной или недостаточной вентиляции. |
Глядя на плюсы и минусы, можно с уверенностью сказать, что все недостатки при правильном подходе легко устранимы, а значит, собрав каркасный дом и должным образом за ним ухаживая, можно быть уверенным в его надёжности.
Даже двухэтажный дом настолько лёгок, что его вполне выдерживает свайно-винтовой фундамент
Каркас пола
Следующий этап пошаговой инструкции — конструирование каркаса пола.
- Для того, чтобы древесина не пропитывалась влагой от бетонного основания, необходима гидроизоляция. Покройте основание битумной мастикой или гидроизолом.
- По периметру фундамента зафиксируйте доски (лежни) из хорошо просушенной древесины.
- Между ними положите доски обвязки способом на ребро через каждые 40-50 см.
- К этим доскам прикрепите лаги — доски, равномерно передающие нагрузку на фундамент.
- Заложите листы утепления (например, плиты пенополистирола).
- Затем поверх утеплителя положите черновой деревянный пол и вразбежку закройте его листами фанеры.
Недостатки каркасных домов
каркасные дома пожароопасны
- Низкая устойчивость к механическим повреждениям. Каркасник по этому показателю проигрывают каменным домам и домам из бруса. Хорошо выдерживая приводные катаклизмы стена каркасного дома подается целенаправленному повреждению человеком и техникой.
- Низкая шумоизоляция. Громкие шумы в соседних комнатах и на улице будут слышны и внутри дома. Потому каркасный дом подходит больше для загородной и дачной жизни. Проблему слышимости между комнатами можно разрешить путем установки шумоизоляции в межкомнатных стенах
- Вибрация внутри дома. Специфика материала и конструктивные особенности способствуют вибрациям в стенах и основания дома, при механическом воздействии, тяжелой и быстрой ходьбе, ударов. Это свойство нарушают спокойствие жильцов и медленно, но приводят к потере жесткости некоторых участков конструкции дома. Данная проблема устраняется, если возводить каркасный дом на бетонном или любом монолитном каменном фундаменте, в один этаж. В идеальном варианте, каркасный возводить на железобетонной плите. Такая плита в качестве фундамента не потребует таких затрат как под тяжелый каменный дом, поскольку ее толщина должна быть минимальной. Тогда при прыжках и ходьбе по дому не будут слышны вибрации.
в каркасном доме при ходьбе ощущается вибрация и хорошо слышны шумы
- Высокая подверженность сырости и гниению. Деревянные конструкции подверженные образованию грибка и плесени в случае повышенной сырости. Потому необходимо строго соблюдать технологию возведения каркасного дома, рассчитывать и учитывать точку росы точку росы (подробней про точку росы), монтировать хорошую вентиляцию гидроизоляцию стен дома. Не допускать повышенной влажности в доме. Мокрые точки в доме, такие как кухня, санузел и ванная, следует отделывать водостойкими материалами.
- Заводятся насекомые и грызуны. Такие проявления, можно свести к минимуму качественной обработкой материалов специальной пропиткой от насекомых. Использовать специальную эковату в качестве утеплителя, а не дешевые утеплительные материалы, типа пенопласта, в которых могут оборудовать себе жилища грызуны.
в стене каркасного дома могут завестись мыши
- Недолговечность. В сравнении с каменными домами и домами из бруса, срок эксплуатации каркасного дома до первого капитального ремонта относительно низкий. И в среднем составляет примерно 25 -30 лет.
- Риск неквалифицированного монтажа дома. Простая технология строительства, позволяет прорабам и фирмам допускать к работе неквалифицированных рабочих, которые в общих четах только знакомы с технологией строительства каркасного дома. Такие бригады, конечно же, построят Вам дом, однако велик риск того, что все тонкости и нюансы строительства соблюдены не будут, по причинам не квалифицированности рабочих. Подвох закачается в том, что визуально нарушение технологии видимы не будут, а станут себя проявлять в течении последующих месяцев, и даже не годов, эксплуатации. А для каркасного дома нарушение технологии строительства чревато возникновением необратимых процессов гниения и быстрому разрушению.
при нарушении технологии монтажа, каркасная конструкция быстро гниет
Для предотвращения подобных ситуаций, следует обращаться в проверенные квалифицированные строительные фирмы, желательно узкой строительной направленности, которые дают гарантию на сою работу, и осуществлять периодический контроль за строительством.
Низкая ликвидность. Как показывает практика, дом каркасной технологии строительства, не окупает себя во время продажи и не пользуется большим спросом.
Принимая во внимание все достоинства и недостатки каркасного строительства можно сделать вывод, что при квалифицированном соблюдении, отработанной столетиями, технологии строительства, с учетом использования современных высококачественных материалов, каркасный дом – это один из самых доступных, эффективных и не затратных вариантов для строительства дома. Используя комбинацию современных материалов в технологии каркасного строительства, все его недостатки можно свести практически к нулю и наслаждается прочным экологически благоприятным домовладением. Используя комбинацию современных материалов в технологии каркасного строительства, все его недостатки можно свести практически к нулю и наслаждается прочным экологически благоприятным домовладением
Используя комбинацию современных материалов в технологии каркасного строительства, все его недостатки можно свести практически к нулю и наслаждается прочным экологически благоприятным домовладением.



































