Как застеклить балкон своими руками
Люди, привыкшие мастерить все самостоятельно, могут обойтись без помощи специалистов. Проще всего соорудить постройку из деревянного бруса. Понадобится брус сечением 5×10 см, желательно без сучков, не перекрученный, хорошо высушенный. В работе пригодятся шурупы по дереву, крепежные уголки и пластины.
Необходимые инструменты – аккумуляторный шуруповерт или электродрель, ножовка или дисковая пила.
Если есть перила, две стойки из бруса можно просто примотать по углам. Далее брус укладывается на перила и прикрепляется крепежными уголками к вертикальным стойкам. К этому основанию, лежащему на перилах, будут крепиться оконные блоки. Все крепежи удобно осуществлять с помощью шурупов, крепежных пластин и уголков.
Когда все оконные блоки будут закреплены, потребуется с помощью вагонки закрыть часть балкона, оставшуюся необшитой. Если плита слабая, вагонку заменяют профлистом.
Таким образом, конструкция из дерева постепенно наращивается, становится более тяжелой и теплой. При желании можно утеплить сооружение минватой и изнутри еще раз обшить вагонкой или оргалитом. Если этого не сделать, волокна минваты будут отслаиваться и летать в воздухе.
Деревянные профили для современного остекления балкона
Представляют собой изготовленные на заводском оборудовании детали для крепежа деревянных рам. Как правило, металлические перила при остеклении не срезают. Поэтому несущие части конструкции должны иметь такую форму, чтобы их легко можно было прикрепить к имеющимся уже металлическим частям. Тогда результат будет смотреться аккуратно.
Виды оконных рам
Оконные рамы изготавливают из различных материалов, таких как:
- деревянные рамы;
- алюминиевые переплёты;
- металлопластиковое обрамление;
- панорамное остекление.
Деревянные рамы
Традиционным материалом для изготовления оконных рам всегда было дерево. Деревянные конструкции обладают высокими теплозащитными свойствами, эстетически красивым видом и экологически безопасны. Покрытые мебельным лаком деревянные остеклённые рамы украшают интерьер помещения балкона или лоджии.
Деревянные окна с вмонтированными стеклопакетами представляют собой идеальное ограждение для лоджий. Такие окна имеют единственный недостаток – высокая стоимость деревянных конструкций.
Алюминиевые переплёты
Алюминиевые рамы легки, красивы и долговечны
Алюминиевые рамы легки, красивы и долговечны. Рамные конструкции из этого металла изготавливают для одинарного остекления. Ограждения из алюминиевых рам устанавливают в холодных помещениях. Застеклённые таким образом балконы и лоджии используются, как летние веранды.
Металлопластиковое обрамление
Самое популярное и самое распространённое оконное ограждение – это установленный на балконе или на лоджии оконный блок из металлопластиковых рам с многокамерными стеклопакетами.
Многокамерный стеклопакет
Какие окна лучше ставить из пластиковых рам у себя на лоджии, хозяин жилища может определить исходя из собственных предпочтений. Это могут быть однокамерные или многокамерные стеклопакеты с матовым или прозрачным остеклением. Количество открывающихся створок и механизмы их открывания определяют на основании консультации, полученной у фирмы – исполнителя работ.
Панорамное остекление
Ограждения из панорамного остекления делают, как правило, на всех балконах или лоджиях дома на стадии его строительства. Бывает индивидуальное решение, сделать такое остекление.
Панорамные стёкла делают раздвижными или глухими
Панорамное стекло обычно занимает большую площадь, поэтому изготавливают его из особого сплава стекла с полимерными добавками. Панорамные стёкла делают раздвижными или глухими. Передвигают створки с помощью специальной роликовой системы.
Так, как остекление одинарное, то установить его можно только в помещениях с неотапливаемым режимом эксплуатации.
Панорамное остекление надёжно защищает от атмосферных осадков и хорошо выдерживает ветровую нагрузку. В летнее время пребывание на застеклённой лоджии создаёт чувство защищённости от внешней среды, и в то же время остаётся ощущение нахождения на открытом пространстве.
Как устанавливается холодное остекление?
Установить конструкцию достаточно легко: если у вас есть время и желание изучать инструкцию, вы сможете сделать это самостоятельно, если же сомневаетесь в своих силах, доверьте работу специалистам.
Перед началом монтажа необходимо провести ряд подготовительных работ:
Балкон очищается от предметов, хранящихся на нем.
Проводится осмотр парапета: если он хлипкий, конструкцию усиливают.
Важно проследить за тем, чтобы ограждение балкона не имело наклонов, иначе сдвижные створки открываться не смогут.
После того как все готово, можно начинать монтаж самого оконного профиля. Он устанавливается непосредственно на парапет, закрепляется при помощи саморезов. Кроме этого, применяют специальные установочные петли, обеспечивающие надежное закрепление конструкции.

Козырек заводят под эти петли, после чего он прикрепляется к плите при помощи саморезов. С наружной стороны конструкции монтируют отливы, они должны быть как в верхней, так и в нижней ее части. Для того чтобы козырек не протекал в месте стыков, его промазывают силиконовым герметиком. Щели и швы заполняют монтажной пеной. После того как каркас готов, на него устанавливают глухие створки, затем ставят сдвижные элементы и настраивают конструкцию.
Холодное остекление, профиль которого алюминиевый, является наиболее практичным решением, так как не требует сложной подготовки балкона, обработки и ухода, как деревянный аналог.
Утепление фасадного остекления
Заказать фасадное утепление холодной
лоджии тут: .
Параллельно друг дружке в одну плоскость инсталлируются из дерева бруски с шагом 30-40 см. Меж ними укладывается минеральная вата либо пенопласт. Все образовавшиеся щели в процессе укладки можно заделать монтажной пеной. В зимнее время года употребляется специальная монтажная пена, владеющая качествами затвердевания при низких температурах воздуха.
На уложенные лаги настилается половая доска под покраску и лакировку. Можно использовать предварительную древесную породу с следующей укладкой на нее какого-нибудь чистового материала.
Тип конструкции
Плюсы и минусы оконных систем

Начнем с распашных вариантов:
- Множество вариаций выбора материалов рам и фурнитуры.
- Остекление возможно не только обычным оконным стеклом, но также многослойными стеклопакетами.
- Используются при холодном и теплом способе застекления.
- Распашные окна комбинируются с глухими.
- Возможна установка горизонтальных жалюзи.
- Довольно большой диапазон цен начиная от самых экономных систем и до достаточно дорогих.
Конструкции этого типа имеют и недостатки:

- для свободного открывания створки внутрь балкона нужно много места;
- теплый вариант остекления, эксклюзивная фурнитура может обойтись достаточно дорого;
- в местах, где окно открывается, подоконник, при наличии такового, должен быть свободным.
Как видите преимуществ у распашных оконных систем гораздо больше, нежели минусов.

Раздвижные окна имеют неоспоримые преимущества. Они
- экономят пространство;
- имеют небольшой вес;
- не захлопываются, когда дует сильный ветер;
- дают больше возможностей для вентиляции балкона;
- очень износостойкие;
- в стандартном варианте исполнения имеют приемлемую стоимость;
- смотрятся более современно;
- безопасны: специальные стекла могут выдержать большие нагрузки, они устойчивы к механическим воздействиям, в процессе обычной эксплуатации практически не бьются, даже если это произойдет при этом не образуются острые грани.
Отметим также некоторые минусы раздвижных систем:
- в основном это холодный способ застекления;
- в процессе эксплуатации полозья со временем могут деформироваться, что тут же отразится на качестве работы створок, будь то их перемещение или примыкание;
- на нижнем полозе направляющей может собраться грязь и влага.
Использование раздвижных систем практично, удобно и экономично, к тому же они имеют современный вид.
Основные преимущества
Считается, что в квартиры с остекленными балконами и лоджиями попадает меньше солнечного света. Но многие люди предпочитают отгораживать эти части своего жилого пространства от улицы.
Преимуществами остекления являются:
- повышение уровня теплоизоляции в квартире (особенно если сам балкон тоже утеплить и установить на нем теплые полы);
- снижение уровня доступности жилья для злоумышленников;
- повышение уровня шумоизоляции;
- защищенность от пыли, мусора и осадков (дождя, снега);
- возможность использовать пространство в качестве оранжереи;
Помимо перечисленного, в остекленной балконной части квартиры просто приятно провести время за чашечкой кофе или интересной книгой.

Наиболее предприимчивые из хозяев решаются на капитальную перепланировку жилья и присоединяют балкон к комнате. Но даже если не изменять план квартиры, балконное пространство с застеклением может эффективно использоваться под хранение вещей, что является существенным плюсом для квартир с малым метражом.
Современный рынок предлагает разнообразные дизайнерские решения. В итоге помещение выглядит, как произведение искусства. Речь идет о безрамном и панорамном остекление, при которых окна делаются в пол.
Замер остекления балкона
Наличие окон поможет сэкономить на стоимости расходов за отопление в зимний период времени. Особенно это касается панельного дома, где установка окон на веранды, для балкона или лоджии — просто практическая необходимость из-за высокой теплопроводности данных сооружений.
Типовой балкон
Надо сразу учитывать, что даже если речь идёт про стандартные «хрущёвские» веранды, лоджии, то всегда есть какие-либо погрешности, которые были допущены ещё при его возведении. Это факт.
В «хрущёвках» размерная разница между одними и теми же плитами по одному стояку может достигать целых 10 см! Соответственно, чем больше площадь — тем больше будет эта погрешность. Поэтому замер окон у панельного дома должен осуществляться с предельной точностью.
При остеклении балкона нельзя забывать о козырьках и отливах, на рисунке — схема их устройства
Что делать в таком случае? Надо просто измерить параметры высоты, ширины не в одном, а как минимум в трёх местах одновременно и найти самую маленькую величину. От неё и нужно будет отталкиваться при заказе окон.
Понятно, что чем меньше площадь помещения, тем проще будет рассчитать габариты окон, если говорить о стоимости, то она будет пусть и ниже, но незначительно. Теплотехнический план любого дома предусматривает наличие информации о размерах веранды, балкона или лоджии, однако они вносились туда из первоначальных проектов.
Пример некачественной работы по остеклению балкона
Поэтому в данном случае теплотехнический план не будет являться истиной в последней инстанции, все измерения необходимо проводить самостоятельно, особенно если речь идёт именно про глухое остекление.
Если же рассчитать замеры окон неправильно, это может вылиться впоследствии в следующие неприятные моменты:
- сама функциональность открывающей фурнитуры может быть серьёзно нарушена;
- на исправление всех недостатков может понадобиться значительная сумма денежных средств;
- при монтаже окон могут возникнуть серьёзные механические препятствия;
- все перекосы прекрасно будут видны и со стороны улицы, и со стороны квартиры, что испортит весь эстетический вид.
Нестандартные балконы
С помещениями, имеющими нестандартные габариты, всё несколько сложнее. Помимо размеров парапета и плиты, обязательно надо учесть ещё и параметры профиля постановочного, про подоконник тоже забывать не стоит.
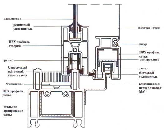
Схема устройства классического алюминиевого профиля
Углы, эркеры, выступы, различные архитектурные дополнения — всё это делает помещение привлекательным с эстетической точки зрения, а вот глухое остекление там сделать проблематично.
Сразу стоит отметить важность замеров подобных конструкций. Сама по себе установка рам там стоит намного дороже, чем в обычных балконах, поэтому неправильные замеры могут привести к большой трате денежных средств. В целом надо учитывать при расчёте следующие параметры:
В целом надо учитывать при расчёте следующие параметры:
- размер балконной плиты;
- размер парапетов;
- параметры эркеров;
- углы (их количество также имеет большое значение);
- выступы;
дополнительные архитектурные приёмы, если таковые имеются.
Интересно, что специалисты в один голос утверждают: наиболее сложно установить в помещения многоугольной формы элементы алюминиевого остекления, а наиболее просто — деревянные, что связано с особенностями материалов (дереву и пластику придать нужную форму несколько легче, чем алюминию).
С другой стороны, по стоимости алюминиевый профиль будет уступать и пластиковому, и деревянному (если под деревянными подразумевать не старые «советские» рамы, а современные, которые считаются элитными). В общем, здесь всё зависит от кошелька и эстетических предпочтений самого владельца квартиры, а также от типа многоквартирного дома.
Схема устройство популярного раздвижного профиля
Однокамерный пакет с теплоизоляцией
Варианты застекления балкона: тонкости законодательства
В общем случае балконная плита, внешняя несущая стена, являются общим имуществом дома. Поэтому, чтобы уберечься от проблем в дальнейшем, необходимо посетить местную администрацию и точно узнать, обязательно ли согласование остекления балконного пространства. В каждом городе или населенном пункте, есть своя политика относительно остекления балконов.
В некоторых городах согласование обязательно только в том случае, когда фасад выходит на проспект. Если окна выходят во двор, представители местной власти могут прямо сказать, что согласование не нужно.
Но для начала придется получить официальный ответ представителя власти, чтобы не было проблем в дальнейшем. Если согласование обязательно, придется подготовить следующие документы:
- Технический паспорт из БТИ.
- Проект перепланировки, подготовленный организацией, имеющей лицензию на проектировочные работы.
- Заключение пожарной инспекции о безопасности такой перепланировки.
- Заключение Санэпидемстанции.
С этими документами нужно обратиться в местную администрацию, которая решит, можно стеклить или нет. В случае положительного решения, собственник имеет право приступать к работам. Если придется осуществить все перечисленные действия, это займет несколько месяцев. Конечно, формальностей много, но они вполне резонны.
Например, при остеклении с помощью деревянных конструкций балкон обшивают вагонкой, а тяжелые рамы держатся на брусе
Сначала важно убедиться, что балконная плита выдержит вес такого теремка. Потому и нужно утверждать проект переустройства
Цена внутренней отделки балкона с холодным остеклением
УслугаЦена
| Стоимость отделки стен и потолка | м2 |
| Виниловая вагонка 100 мм белая | 975 р. |
| Панели из ПВХ 250 мм белые | 1234 р. |
| Панели из ПВХ 250 мм цветные | 1819 р. |
| Стоимость отделки пола | м2 |
| Черновой пол (лаги, фанера 15 мм) | 1430 руб. |
| Половая доска (с покрытием антисептиком) | 2200 руб. |
| Настил ламината (цвета на выбор) | 1500 руб. |
| Стоимость мебели | шт. |
| Встроенный шкаф | 18 000 рублей |
| Встроенная тумба | 12 100 рублей |
Источники
- https://okna-alma.ru/vnutrennyaya-otdelka-kholodnogo-balkona/
- https://stroikairemont.com/otdelka-xolodnogo-balkona/
- https://balkon4life.ru/otdelka/vnutri-otdelka/holodnogo-balkona/.html
- https://balkonidea.ru/vidy-i-sposoby-otdelki-balkonov/
- https://www.ivd.ru/stroitelstvo-i-remont/otdelocnye-materialy/8-variantov-otdelki-sten-osteklyonnoj-neotaplivaemoj-lodzhii-23321
- https://okna812.ru/articles/chem-obshit-balkon-vybor-materialov-dlya-vnutrennej-otdelki-balkona-ili-lodzhii-v-2020-godu/
Остекление веранды своими руками – что нужно знать новичку?
Перед началом работ необходимо закупить материал, инструменты, провести этап подготовки. Когда разновидность лоджии выбрана, а инструменты подготовлены, необходимо составить план работ. План включает информацию о типе, размерах будущей постройки, ее размещении, конструктивных особенностях. Эта часть работы играет решающую роль, поскольку помогает избежать ошибок, неточностей.
Рассмотрим технологию на примере монтажа деревянных рам:
- Установите брусья по периметру.
- Обработайте бруски антисептическим средством для защиты от влаги, гниения.
- Закрепите рамы (без стекла) к брусьям вертикально.
- Образовавшиеся щели задуйте монтажной пеной.
- Заполните внутренние пазы герметиком.
- Спустя 2-4 минуты после заполнения, вставьте стекла в панели.
- Зафиксируйте стекла, пройдитесь герметиком по периметру с обеих сторон.
- Закрепите штапик для надежной фиксации стекол в панелях, маскировки потеков герметика.
Финишным этапом является отделочные работы, покраска под цвет фасада.
Подгонка и монтаж оконных отливов

Фото подгонки отливов при остеклении балкона.
Технология монтажа алюминиевых конструкций отличается от технологии монтажа металлопластиковых окон, отливы по своей конфигурации то же имеют отличия. В поперечном разрезе они представляют собой развернутый угол с полками 30 и 70мм.
При установке отлива узкая полка направлена внутрь балкона, широкая (выполняется с загибом на конце для жесткости) – смотрит наружу.

Разметка и подгонка отливов осуществляется следующим образом. Отливы начинают монтироваться с боковых сторон балкона. Рулеткой замеряют длину отлива, она берется по боковому подоконнику, а именно от края, который упирается в стену здания, до наружного угла и добавляется 70 мм для нахлеста на передний отлив и образования углового соединения.
На угловом конце отлива выполняется подрезка. Чертится линия поперек отлива на расстоянии 65 мм от края. По ней меньшая полка (30 мм) срезается полностью, большая (70 мм, с заворотом) сгибается наискосок, по линии, которая соединяет углы оставшегося квадрата по диагонали. На загнутую часть, при установке, ложится передний отлив, она необходима для соединения отливов между собой. Загнутую часть можно уменьшить, оставив полоску вдоль сгиба шириной примерно 20 мм, этого вполне достаточно для соединения угла.
Подгонка бокового отлива закончена, с другой стороны балкона она производится аналогично.

Монтаж отливов на балконе с выносом подоконника.
Передняя планка подрезается так же, за исключением загиба, его быть не должно. После разметки и среза меньшей полки угла, большая полка срезается наискосок без загиба. Эта операция делается с обеих сторон переднего отлива. Его углы ложатся поверх загнутых полок боковых планок. Ввиду большой длины балкона, передний отлив скручивается из двух частей.
Узкая полка отливов должна полностью лечь на подоконник (поверх него, вдоль), а широкая (лицевая) с наклоном на улицу над обшивкой каркаса балкона.

Отливы сверху прикручиваются к подоконникам, а по углам соединяются между собой мелкими саморезами или заклепками.
Остекление деревянными окнами – на что обратить внимание
Современные деревянные окна выглядят эстетично, особенно на длинных балконах или лоджиях, которые внутри отделаны вагонкой или деревянными панелями. Дерево прекрасно впишется во многие интерьеры и однозначно понравится тем, кто предпочитает все натуральное.
обратите внимание
- Они очень требовательны в уходе. Дерево обладает всеми недостатками «живого» материала. Оно может рассыхаться, напитываться влагой, деформироваться под ее воздействием. Поэтому нужно постоянно следить за целостностью защитного покрытия и раз в 1-2 года обновлять его в обязательном порядке;
- Так же нельзя допускать, чтобы профиль постоянно был грязным. После снега или дождя, которые несут с собой и пыль, нужно очищать наружные створки;
- Качество и долговечность изделия будет напрямую зависеть от использованной породы дерева. Чаще всего используют более плотный материал, например, сосну;
- Помимо этого остекление деревянными окнами нельзя назвать полноценно теплым.
Поэтому выбирать его целесообразно, если стоит задача быстро и с минимальными затратами защитить помещение от влияния факторов окружающей среды.

прослужить около 15 лет
Выбор вида остекления (материал и функционал)
В зависимости от уровня комфорта и степени теплоизоляции может быть выбран один из нескольких видов остекления:
- Теплое. Применяются ПВХ-профили или теплые алюминиевые конструкции. Как правило, используются энергоэффективные 2х-камерные стеклопакеты, поворотная и поворотно-откидная фурнитура. Позволяет создать комфорт жилого помещения и обустроить на балконе кабинет, детскую либо объединить с кухней.
- Полутеплое. Используются тонкие ПВХ-профили (например, Slidors). Уместно использовать в южных районах или для организации пространства под складирование инвентаря и других вещей.
- Холодное. Используется раздвижной алюминий (например, Provedal). Применяется для изоляции балкона от внешних воздействий и создания дополнительного пространства под хранение вещей.
Стоимость каждого из видов отличается примерно на 30-50% в зависимости от выбранных материалов и комплектующих. Естественно, что чем выше теплоизоляцию сможет обеспечить остекление, тем дороже оно обойдется.
Читайте по темеЧем отличается теплое остекление балкона от холодного?
Как установить стеклопакеты самостоятельно
Стеклопакет можно установить самостоятельно
Важно все делать поэтапно, придерживаясь правил:
- Совершают демонтаж старого остекления. Аккуратно достают окно, стараясь не разрушать раму, бетон или кирпич.
- Очищают место установки от грязи.
Важно не игнорировать второй пункт. Если не очистить место от пыли, в будущем жители будут страдать от сквозняков и лишнего конденсата, затекающего во все щели
Если не очистить место от пыли, в будущем жители будут страдать от сквозняков и лишнего конденсата, затекающего во все щели.
Делают грунтовку откосов. Это делается для того, чтобы монтажная пена легла ровно, не вылезая за проемы, щели и стены. Она избавляет от сквозняков. Затем освобождают оконную раму от лишних элементов и помещают ее в проем
Перед этим важно установить уровень горизонта с помощью клиньев. Раму фиксируют в проеме
Один удерживает ее, другой – фиксирует. После – соблюдают положение рамы от края настенной поверхности
Это влияет на внешний вид. Декоративная накладка снимается с верхней петли. Удаляется штифт (молотком). Рукояткой окно открывают, а створку наклоняют, чтобы верхняя петля разъединилась. Затем створку снять со штифта снизу.
После проделанных работ пластиковые окна запенивают
Перед использованием монтажной пены, поверхность важно смочить водой. Работу совершают по всему периметру. Так окна не будут пропускать влагу и холодный воздух, а тепло не будет уходить из помещения
Так окна не будут пропускать влагу и холодный воздух, а тепло не будет уходить из помещения.
После высыхания пены устанавливается наружный отлив и подоконник. Первый прикручивается саморезами к оконному профилю. Второй устанавливается монтажной пеной.
Монтаж стеклопакетов требует определенной квалификации, но работу может выполнить и новичок
Для небольшого окна подойдет холодное остекление – можно выбрать однокамерный стеклопакет. Вес мал, монтаж легкий. При желании можно создать из балкона отдельную комнату, для утепления используют двухкамерные стеклопакеты – они надежнее, прочнее и служат дольше
Утепление стен и потолка
Для утепления стен можно использовать последующие составляющие:
- Пенофол.
- Из дерева бруски.
- Пенопласт завышенной плотности.
- Монтажная пена.
Об укреплении балкона смотрите на видео:
Стенки, требующие утепления, обшиваются пенофолом. Обрешетка обычно делается из бруска 50х50 мм. Для удобства шаг меж брусками можно сделать сообразным ширине наполнителя. Пенопласт укладывается меж брусков и крепится к стенке при помощи плас. Остекление балконов алюминиевым профилем. Балкон или холодный профиль. Щели, образуемые при монтаже, также заделываются монтажной пеной. В качестве обшивки можно использовать евровагонку или имитацию бруса. Пластмассовые панели также подходят для облицовки стенок.
Теплое остекление
Полноценное теплое остекление лоджий изготавливают из трех- и пятикамерного профиля. Такой вариант обойдется дороже, чем алюминиевый профиль или однокамерная конструкция из ПВХ. Из-за значительного веса утепленного профиля для некоторых балконов такой вариант не приемлем. Пренебрегать безопасностью нельзя, иначе лоджия под весом остекления вполне может обрушиться.
Если несущие конструкции здания достаточно прочные и выдерживают нагрузку трехкамерного профиля с двойными стеклопакетами, владельцы балкона обязательно оценят многочисленные плюсы теплого остекления:
- защиту от шума, грязи и холода круглый год. Погода на балконе всегда будет комфортной, независимо от того, что творится снаружи;
- возможность использовать несколько дополнительных квадратных метров жилья в любую погоду. Здесь можно сделать уголок для просмотра фильмов, библиотеку или даже мини-кухню;
- простой уход. Гладкая поверхность пластика и стеклопакетов легко отмывается обычной бытовой химией. Чтобы очищать стеклопакеты снаружи было также просто, как и изнутри, подумайте о расположении открывающихся створок при заказе ПВХ-профиля.
Если вы цените комфорт и хотите оптимально использовать пространство вашего жилья, выбирайте теплый ПВХ-профиль. С ним балконное пространство превратится в дополнительную комнату или легко станет частью жилого помещения.

Особенности балкона с выносом
Часто при остеклении балкона хотят расширить его площадь, в особенности если до остекления она была очень маленькой (если это балкон в панельном доме). Одним из самых удачных решений в этой ситуации станете остекление с выносом. Это позволит расширить пространство за счет дополнительного подоконника шириной до полуметра. Это достигается за счет особой формы каркаса с кронштейнами.
Чтобы все выглядело эстетично, а кронштейны не были видны, изнутри все обшивается панелями — деревянными или ПВХ. Снаружи же кронштейны скрывает обычная пластиковая вагонка. Это очень просто, бюджетно, функционально. И красиво, ведь вагонку можно выбрать самых разных оттенков. Хотя чаще всего предпочитают стандартный белый вариант.
Обычно кронштейны крепят только с лицевой стороны, но при желании их можно установить по бокам — это обеспечит дополнительное расширение пространства. Что до материала конструкции, то здесь подойдет и алюминиевый профиль, и дерево, и металлопластиковые стеклопакеты. А вот безрамный вариант с выносом выполнить нельзя.
Важно только одно — плита перекрытия должна быть в хорошем состоянии, прочной и способной выносить достаточно интенсивные нагрузки, ведь конструкция с выносом весит немало. Поэтому перед тем, как выбрать остекление, надо оценить ее состояние и укрепить при необходимости
Зачастую также укрепляют ограждение — сваркой и кладкой пеноблоков. Еще одним важным моментом является укладка теплоизоляционного и пароизоляционного слоя. Ошибки на этом этапе могут привести к образованию конденсата.
Выполнение работ по остеклению балконного блока с выносом — достаточно трудоемкий и непростой процесс, потому выполнить его без специальных знаний практически невозможно. Потому лучше доверить эту работу специалистом с богатым опытом работы в этой области.
Также стоит предварительно узнать, нужно ли разрешение ЖКХ на проведение работ, в особенности если вы живете в доме, представляющем архитектурную ценность. Если пренебречь этим, могут возникнуть серьезные конфликты, вплоть до полного демонтажа конструкции.
Варианты остекления балкона
Теплое остекление балконов
Деревянные конструкции
Изготавливаются из соснового бруса или ели для распашных систем с одним стеклом, толщиной не более 4 мм. Переплет из-за особенностей древесины массивный, что влияет на пропускную способность света. Размеры рам небольшие, так как дерево плохо удерживает жесткую форму и подвергается деформации от внешних атмосферных воздействий. По этой же причине периодически требуется покраска или обработка олифой.
Основные параметры:
- высота — до 100 см;
- ширина — до 70 см.
Конструкция обеспечивает повышение температуры по сравнению с улицей на 10°С, понижение шума — на 10 дБ. Материалы обходятся недорого, поэтому проекты часто реализуются на даче или при остеклении загородных домов из бруса, чтобы сохранить экологичность объекта.

Данный вариант остекления балконов и лоджий позволяет эффективно решить задачу сохранения тепла. Следует знать, что «утечка» тепла происходит через окна по двум направлениям: через щели и через стекла.
По мнению специалистов, выбор материала, из которого сооружена коробка и рамы, не оказывает значительного влияния на теплообмен. Конечно же, коэффициент теплообмена у дерева и металла имеет значительное отличие, но общая площадь поверхности, которую «покрывает» коробка и рамы, незначительна, в сравнении с площадью остекления. Исходя из этого, по критерию теплозащиты, качество рам не определяет сам материал, его определяет качество непосредственного их изготовления, точность «подгонки», что в результате приведет к отсутствию щелей.
В данном варианте следует использовать исключительно заводские рамы. Они безупречно подогнаны к коробке, как правило, визуально щелей обнаружить не возможно. Остается решить только один нюанс — «выход» тепла через стекла.
Но все равно коробка и рамы получаются очень громоздкими и при установке их на ограждение балкона они не очень красиво смотрятся.




































