Расчет количества кирпича
Из-за неправильных расчетов новички зачастую приобретают в полтора раза больше материла, нежели его нужно в действительности. Чтобы понять, сколько необходимо купить кирпича, отдельно рассчитывается площадь всех стен, исключая площадь дверных и оконных проемов. Число, которое получилось, умножается на толщину стен. При расчете обязательно учтите толщину самих кирпичей и растворных швов между ними.
Чтобы облегчить данный процесс, можно воспользоваться таблицами из открытого доступа или специальными онлайн-сервисами. Если же вы решили создать индивидуальный проект бани, то лучше обратиться к специалистам — они помогут провести все необходимые расчеты.
Возведение стен для бани из кирпича
Чтобы построить своими руками баню из кирпича, для начала его нужно правильно выбрать. Надежные стены возводят только из красного кирпича, так как силикатный его аналог быстро разрушается под воздействием влаги, которая хорошо поглощается его поверхностью. Керамический кирпич более устойчив к сырости, а благодаря своей огнестойкости используется даже при кладке печей.
Способы и правила кладки стен из кирпича

Для стен бани существуют такие способы укладки кирпича:
- В полтора или два кирпича.
- Кладка «в колодец» — это двойные стенки, соединенные внутри между собой короткими поперечными перегородками. Свободное пространство заполняется утеплителем.
- Двойные стены, имеющие между собой воздушный зазор в 4-6 см.
При укладке кирпича важно выполнять такие правила:
- Первый ряд кладки должен состоять всегда только из неповрежденных штучных изделий.
- Укладка каждого ряда идет с наружных кирпичей.
- Битый кирпич можно использовать для заполнения внутренней стороны ложковых рядов.
- Битый кирпич не применяют для перевязки углов и кладки опорных участков.
- Перед укладкой кирпич смачивается водой для лучшего сцепления с раствором.
Теперь рассмотрим как вести каменную кладку из керамического красного кирпича.
Подготовка к ведению кладки из кирпича
В первую очередь на готовом фундаменте нужно установить порядовки. Это поможет вести ровную кладку. Это выполняется с помощью отвеса в местах соприкосновения и пересечения стен на углах кладки и на ее прямых участках. Шнуры натягиваются для выравнивания каждого ряда. Чтобы избежать при этом провисаний шнура, через каждые 5 м под него подставляют маячные кирпичи.
Как перевязывать кладку из кирпича

Для того чтобы готовая стена после усадки бани не расползлась по вертикальным швам, необходима их правильная перевязка. Существует три способа:
- Однорядная цепная система — чередование тычковых и ложковых рядов. Вертикальные швы перевязываются на полкирпича, а поперечные в каждом ряду смещаются на одну четверть кирпича. Эта система довольно трудоемка, но надежна.
- Каждые три ложковых ряда чередуются с одним тычковым. Поперечные вертикальные швы не перевязывают в трех смежных рядах. Такая система очень подходит для кирпичной кладки колонн и небольших простенков.
- Система «многорядка» — здесь чередуются пять ложковых рядов с одним тычковым. Поперечные вертикальные швы ложковых рядов смещаются на полкирпича, а тычковых — на четверть. Такая кладка может использовать половинки кирпича, тем самым позволяя сэкономить материал.
Кладка углов кирпичной бани

Первый угол начинают поднимать с укладки в него ? кирпича. При малой нагрузке на стены для низа оконных проемов можно применять половинки кирпичей. Чтобы не было смещения вертикальных швов, на одну четверть кирпича складывают версту (верста — это крайние ряды кирпичей в кладке). При кладке нечетного ряда — тычковыми сторонами (кирпич ложится поперек стены), а четного — ложковыми (кирпич ложится вдоль стены). Внутреннюю версту выполняют любым способом — это зависит от толщины стены. Пустоты в углах закладывают четвертинками кирпича. Геометрия выложенного угла проверяется строительным угольником, а его вертикальность — с помощью отвеса и правила. Незначительные отклонения исправляются рядом выше.
Создание швов кирпичной кладки

Раствор для кладки готовится из воды, песка и цемента. Он должен быть достаточно пластичным для качественного заполнения пустот между кирпичами. Если вы правильно уложите кирпичи на качественном растворе, кладка получится прочной. Толщина ее вертикальных швов принимается равной 10 мм, а горизонтальных швов — 12 мм. Форма швов кладки бывает вогнутой, выпуклой и прямоугольной. Создается она специальным инструментом — строительной расшивкой.
Кирпичные перемычки для проемов в бане

Рядовые перемычки над оконными и дверными проемами используются для пролетов менее двух метров. При их изготовлении необходимо соблюдать горизонтальность рядов и правила перевязки кирпичей в кладке. В высоту рядовая перемычка насчитывает 6-9 рядов, а длина — на полметра больше ширины проема. Перемычки укладываются на растворе М25 из качественного кирпича. Для изготовления перемычек применяется опалубка из досок толщиной 4-5 см. Иногда ее могут заменить коробки дверей и окон, закрепленные в кладке. В этом случае их древесину нужно защитить слоем рубероида.
Вначале на опалубку укладывается раствор слоем в 2-3 см, в нем размещаются три арматурных стержня диаметром 6 мм, которые запускаются в общую кладку более чем на 25 см и закрепляются, обвязывая кирпич.
Рядовая перемычка выдерживается на опалубке чуть более 12 суток при температуре среды выше десяти градусов и до 24 суток при его температуре до десяти градусов.
Отделка
После возведения постройки, установки окон, монтажа чернового пола и потолка, укладки тепло- и гидроизоляция можно приступать к отделке. Для отделки кирпичных поверхностей подходят разные материалы.
Внутренняя
Особенности внутренней отделки:
Для отделки лучше использовать вагонку. С ней просто работать, она подходит для отделки парилок, душевых, предбанников
Важно заранее подготовить дерево. Доски необходимо покрыть специальными антисептиками, антипирином. Можно комбинировать отделочные материалы
Можно комбинировать отделочные материалы
В парилке стены следует отделать вагонкой с наименьшим показателем теплопроводности. В моечной комнате дерево можно комбинировать с пластиковыми панелями, натуральным, декоративным камнем. Полы можно покрыть керамической плиткой или керамогранитом.
При покупке плитки для моечной необходимо выбирать шероховатые изделия. Так снизится риск поскользнуться во время посещения бани.
Внешняя
Внешнюю отделку для кирпичных поверхностей проводить необязательно, но если швы получились не ровными, можно покрыть стены специальной штукатуркой для облицовки фасадов зданий.
Чтобы самостоятельно построить кирпичную баню, нужно иметь практические навыки по использованию ручных и электрических инструментов. Если придерживаться простых правил по работе с кирпичом, можно получить долговечную постройку.
Проекты бань из кирпича
Важным этапом начала любого строительства является проектирование объекта. Построить отличную баню из кирпича можно, использовав в качестве основы готовый типовой проект или разработав его самостоятельно с учетом личных потребностей и предпочтений.
Если участок имеет ограниченное пространство, можно обойтись строительством небольшой бани размерами 3Х4.
Самый простой проект небольшой бани размерами 3Х4 Источник mos-logist.ru
Большие площади участка дают свободный полет фантазии и позволяют легко реализовать проект любых размеров.
Проект бани с бассейном Источник pinterest.com
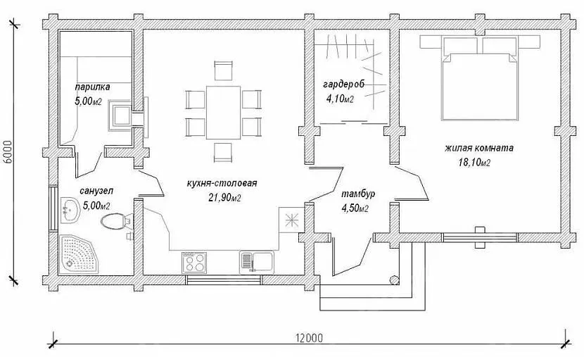
Независимо от размеров, баня включает в себя несколько различных по назначению помещений, расположенных под одной крышей и разделенных перегородками:
- моечную;
- парилку;
- комнату отдыха.
Наличие и расположение других помещений планируют по желанию застройщика. В зависимости от назначения постройки и ее размеров, количество дополнительных комнат не ограничено.
Проект жилой бани Источник banya-ili-sauna.ru
Продуманная внутренняя планировка и удобное расположение необходимых элементов в бане облегчает ее эксплуатацию и уход. Даже небольшие комнатки требуют разделения на функциональные зоны. Это позволит использовать их прямому назначению.
При оборудовании входной двери в комнате отдыха, зимой холодный воздух поступает в помещение и охлаждает его. Этого можно избежать, применив один из предложенных способов:
- строительство утепленного тамбура при входе;
- устройство крытой веранды;
- установка капитальной разделительной перегородки в комнате отдыха.
Пример проекта и планировки бани из кирпича Источник oamin.ru Проекты кирпичных бань включают подробную разработку каждого элемента:
- фундамента;
- стен;
- потолка;
- кровли.
Главным объектом проекта бань является печь. Она должна быть удобна в использовании и отлично прогревать помещение. Размер печи зависит от площади бани. Оборудованное место для хранения небольшого количества дров значительно облегчит обслуживание печи. Ее удобнее всего располагать со стороны комнаты отдыха.
Устройство печи из кирпича для бани Источник yellowmaster.ru
Металлические печи, предлагаемые производителями в самых различных вариациях, быстро нагреваются и просты в установке. Металлическую печь чаще всего обкладывают рядом кирпича, защищающего металл от перегрева.
Проекты бань больших размеров нередко предусматривают строительство санузла, кухни и других помещений. Реализация таких проектов осложнена устройством обогрева, ведь комнаты должны равномерно прогреваться. Для этого устанавливают дополнительные системы отопления:
- газовые котлы;
- электрические обогреватели;
- котлы на твердом топливе;
- конвекторы.
Камин для обогрева комнаты отдыха Источник ninfest.ru Установка комбинированной системы отопления позволяет использовать самый доступный способ обогрева бани из кирпича больших размеров и регулировать расходы.
Проекты
При строительстве своими руками главная сложность – планирование помещений внутри постройки. В решении задачи помогут готовые проекты. Можно строить в точности с найденными чертежами, а можно взять проект за идею и видоизменить его для собственных целей. Рассмотрите варианты небольших кирпичных бань, которые проще всего построить самостоятельно.


Баня 6×4 м
Исходный вариант проекта предполагает наличие трех помещений:
- Комната отдыха (10,4 кв м).
- Моечная комната (1,75 кв м).
- Парная (4,75 кв м).
Планировку бани легко изменить, поменяв местами дверные проемы. Учитывайте, что вход напрямую в комнату отдыха – не самый лучший вариант, особенно зимой. Ведь при открывании дверей холод будет поступать внутрь. Для устранения недостатка послужит пристроенный снаружи тамбур
Чтобы устранить попадание холодного воздуха с улицы в комнату, тамбур важно правильно утеплить. Еще один похожий способ – сооружение террасы. Защитой от холода послужит установленная в комнате отдыха перегородка
С помощью сооружения можно отделить небольшой участок помещения. В результате перепланироваки получится длинная комната отдыха
Защитой от холода послужит установленная в комнате отдыха перегородка. С помощью сооружения можно отделить небольшой участок помещения. В результате перепланироваки получится длинная комната отдыха.


Одноэтажная баня 6х5 м
Сооружение с достаточными габаритами может быть превращено в гостевой дом-баню.
Здесь внутри предусмотрены:
- холл;
- гостиная приличных размеров;
- комната отдыха;
- парная;
- санузел.
Отличительная черта – пристроенная снаружи веранда.
Баня 3 на 4 метра
Несмотря на столь малые габариты, баня 3х4 м вполне подойдет для семейного пользования. Кроме того, постройка предполагает несколько вариантов размещения комнат внутри. Некоторые планировки также подразумевают вход в комнату отдыха прямо с улицы. Отгораживать небольшое помещение бессмысленно, а потому защитой комнаты отдыха от холодного воздуха послужит пристроенный тамбур.


Еще один вариант изменений – исключение отдельной моечной комнаты. Русская баня предполагает, что можно одновременно мыться и парится. Сооружение отдельной моечной – современные интерпретации традиционной бани
Здесь важно предусмотреть правильно расположение печи каменки. Например, угловая печка не будет мешать людям при водных процедурах. Немного увеличить полезную площадь бани можно сооружением подполья
Погреб нужен, например, для хранения домашних заготовок, или как склад для хозяйственных принадлежностей
Немного увеличить полезную площадь бани можно сооружением подполья. Погреб нужен, например, для хранения домашних заготовок, или как склад для хозяйственных принадлежностей.


В большой бане важно правильно учесть расположение печи. Нужно, чтобы она отапливала все помещения. При этом важно подобрать вариант печки, ведь она будет работать еще и как отопительная
При строительстве бань из кирпича важно уже владеть техникой кирпичной кладки. Научиться класть кирпич можно, присутствуя на строительстве. Например, если ваши соседи занимаются возведением сарая. Попробуйте посмотреть на процесс, уточните у них интересующие вопросы
При этом важно подобрать вариант печки, ведь она будет работать еще и как отопительная. При строительстве бань из кирпича важно уже владеть техникой кирпичной кладки
Научиться класть кирпич можно, присутствуя на строительстве. Например, если ваши соседи занимаются возведением сарая. Попробуйте посмотреть на процесс, уточните у них интересующие вопросы
Особое внимание уделите возведению углов постройки. От этого этапа зависит геометрия и прочность сооружения


Как делается кладка кирпича
Для строительства бань чаще всего используют красный кирпич. Возведение стен происходит в соответствии с одной из технологий:
- кладка в 1,5 или 2 кирпича с последующим утеплением;
- возведение двойных стен с укладкой теплоизоляционного слоя.
Фото проекта бани из кирпичаИсточник mos-logist.ru
Кладка в 1,5 кирпича обладает отличной прочностью. Возведение стен начинают с угла, выдерживая строгий перпендикуляр между ними.
В зависимости от расположения кирпича в ряду различают:
- ложковые ряды, которые укладывают длинной стороной кирпича вдоль стены;
- тычковые ряды предусматривают расположение кирпича короткой стороной поперек стены.
Схема укладки стен бани в 1,5 кирпичаИсточник mos-logist.ru
Вдоль будущей стены натягивают шнур для ориентировки в горизонтах, концы которого устанавливают между крайними кирпичами.
Кладка стен из кирпича имеет ряд особенностей.
- Раствор наносят на всю поверхность кирпича равномерным слоем.
- Кирпич равняют на плоскости рукояткой кельмы, удаляя излишки раствора.
- Для раскола материала используют молоток-кирочку.
- При кладке стен в два кирпича, раствор наносят в большом количестве, достаточном для кладки обоих рядов.
- Битый кирпич не используют в простенках и перевязочных узлах.
- Для равномерного распределения давящей нагрузки тяжелых стен используют перевязку кладки.
Критерии выбора проекта
При выборе проекта вашей парной необходимо учитывать несколько моментов. Первоначально вы должны решить, какие именно размеры будет иметь ваша баня, сколько в ней будет помещений, какой вид она будет иметь с архитектурной точки зрения.
Дело в том, что он отлично подходит к большинству стандартных участков, так как занимает малую площадь.
Если же вы хотите построить более сложное сооружение, вам понадобятся проекты кирпичных бань с верандой. В этом случае вы сможете получить в своё распоряжение не только парную, но и крытую зону отдыха, оснащённую, например, мангалом для готовки шашлыка. Конечно, такой вариант строительства потребует дополнительной земельной площади, а также увеличит стоимость всего строительства, но в этом случае уровень комфорта вашего банного отдыха значительно повыситься.
Кроме того, если вам понадобится двухэтажная кирпичная баня, проекты такого сооружения стоит согласовывать в отдельном порядке. Дело в том, что это будет уже фактически гостевой дом, а требования к нему несколько иные, чем требования, предъявляемые к обычным баням. В связи с этим при подборе вариантов такого строительства необходимо советоваться с опытным архитектором, который учтёт все нюансы подобного проект и последующего воплощения его в жизнь.
Кроме архитектурного проекта, размеров бани и количества помещений в ней необходимо при выборе учитывать техническую составляющую, например, вид фундамента. В настоящее время наиболее популярным при строительстве бань является ленточный фундамент. Дело в том, что он дешевый, и его вполне можно возвести собственными силами, не привлекая для этого профессиональных рабочих.
При этом обычно выбирают вариант с глубоким залеганием элементов конструкции, так как этот фундамент пизолит выдержать на себе достаточно массивные стены и иные элементы конструкции каменного здания. Кроме того, стоит иметь в виду то обстоятельство, что проект вашей парной должен учитывать проекты кирпичных печей для бани. Дело в том, что печь должна стоять на отдельном фундаменте, который при этом нужно увязать с фундаментом всего здания и его конструкцией. Поэтому данный момент должен обязательно быть отражён в вашей проектно-строительной документации.
Из металла
Наряду со старыми добрыми каменками в ходу сегодня также печки для бани из металла. В отличие от кирпичных они довольно быстро изготавливаются своими руками, благо что чертежей и готовых проектов в Сети — не счесть. Конечно, по ряду показателей такой вариант уступает классической русской печи:
- быстро остывают;
- не совсем безопасны;
- не подходят для больших парилок;
- требуют много ресурсов.
Однако некоторые минусы легко устраняются вполне конкретными действиями. Например, если обложить кирпичом металлическую печь для бани, то она будет лучше сохранять тепло и обеспечит более приятный пар. В конечном итоге, ответ на вопрос о том, какая печь лучше для бани, зависит от размеров вашей парной, а также от ряда других сопутствующих факторов:
- периодичности использования;
- ваших материальных возможностей;
- особенностей участка и т.д.
Предлагаем ваш подробную пошаговую инструкцию, которая поможет своими руками изготовить надежную печку для бани из металла. В качестве исходного материала возьмем обычную трубу.
Готовим основание
- в месте, где планируется размещение печи, сделайте яму глубиной 0,5 метра, длину и ширину можно довести до 0,7 метра;
- приблизительно на 0,3 метра высотой засыпьте подготовленную яму очень мелким щебнем и проведите основательную утрамбовку;
- приготовьте цементный состав из расчета цемент-песок в соотношении 1 к 4, разбавьте смесь водой и залейте на щебень;
- в течение суток основание высохнет и приобретет твердость — положите поверх несколько листов рубероида для надежной защиты от влаги;
- приготовьте бетонный состав из цемента, песка, мелкого гравия и воды в соотношении 1:2:4 и залейте на рубероид;
- тщательно выровняйте основание при помощи строительного уровня;
- после высыхания оформите площадку из кирпича приблизительно на 0,7 метра в ширину и высоту;
- также оформите защитный кирпичный экран высотой до 1,2 метра — в дальнейшем печь будет находиться в непосредственной близости от него, приблизительно на расстоянии 0,2 метра.
Горизонтальная печь — пошагово
- подготовьте рабочий кусок трубы длиной 0,7-0,9 метра;
- проведите скрупулезную зачистку всех краев;
- из подготовленного металлического листа вырежьте фрагмент размером 0,8 на 0,4 метра;
- к проему в середине горизонтально приварите прутья, а в нижней части трубы — колосник;
- оформите из металлического листа топку выносного типа и сделайте вырезы;
- приварите этот фасад к базовой трубе;
- для оформления задней стенки вырежьте круг, равный диаметру трубы, и приварите его к основной конструкции;
- сделать отверстие для дымохода можно в верхней части — достаточно будет и небольшого размера, приблизительно 0,16х0,16 метра;
- приварите основной свод и трубу, которая будет использоваться в качестве дымохода;
- все, что остается — это установить дверки для топочного отсека и поддувала;
- финишное оформление сводится к тщательной шлифовке всего корпуса, а после к обработке его стойкой краской на полимерной основе.
Вертикальная печь — пошагово
- подготовьте основу — фрагмент трубы приблизительно до 0,9 метра;
- к нижней части трубы приварите круг из металлического листа — он должен быть равен диаметру трубы;
- вырежьте отверстие под поддувало, максимальная его ширина — не более 0,2 метра;
- приварите круглую пластину с диаметром по трубу, вырежьте середину и наварите пруты на отверстие — это будет колосник;
- оформите топочный отсек, вырезав над колосником небольшой прямоугольник, и заделайте его металлической дверкой;
- выше топки опять же вырежьте отверстие, приварите пруты для колосника и повесьте дверку;
- заварите корпус круглым фрагментом из металла, не забудьте об отверстиях для дымохода и поддувала;
- традиционный финал — последовательная шлифовка всего корпуса и покраска.
Видео, которое поможет вам справиться с процессом изготовления печи лучше. Наверняка некоторые вопросы, возникшие у вас в голове, получают логичные ответы.
Кирпичная баня
Для кирпича меньше ограничений в выборе места под строительство и при реализации конфигурации помещений. Под здание бани выбирают огнеупорный материал.
Баня из кирпича: плюсы и минусы
Из плюсов кирпичной бани выделяют:
- пожарную безопасность;
- срок службы;
- экологичность;
- разнообразие проектов;
- простоту эксплуатации.
Глина, из которой делаю кирпич, — природный материал, поэтому можно говорить о его экологичности. Древесину на этапе строительства бани обрабатывают антипиренами и препаратами против гнили, которые несут с собой вредные примеси
Поджечь блоки невозможно, что важно для здания, т. к. используют твердотопливные печи, в топке которых температура достигает 600°
Баня из кирпича прослужит 60 и больше лет при должном уходе. Строение из бруса выдерживает такой же срок, но расход на обслуживание выше в 2—3 раза. Оцилиндрованный или строганный брус не изгибают, что мешает созданию дизайнерских построек. Форму стены бани из блоков делают криволинейной, если этого требует проект
используют твердотопливные печи, в топке которых температура достигает 600°. Баня из кирпича прослужит 60 и больше лет при должном уходе. Строение из бруса выдерживает такой же срок, но расход на обслуживание выше в 2—3 раза. Оцилиндрованный или строганный брус не изгибают, что мешает созданию дизайнерских построек. Форму стены бани из блоков делают криволинейной, если этого требует проект.
При выборе материала учитывают минусы:
- теплоемкость;
- необходимость утепления;
- влагопоглощение;
- цена;
- фундамент.
Теплопроводность кирпича выше, чем у древесины, поэтому необходимо утепление бани изолятором. Микропоры в блоках впитывают влагу, разрушаясь от перепадов температур и теряя прочность. Проект бани из кирпича может обойтись дороже такого же по габаритам из оцилиндрованного бревна. Вес постройки требует прочного фундамента, что также увеличивает затраты и создает проблемы на нестабильных грунтах.
Из какого кирпича лучше строить баню
При возведении стен кирпичной бани используют колодцевую кладку, особенностью которой является наличие воздушной прослойки между плоскостями. Такой подход позволяет утеплять поверхность изнутри. Из блоков применяют:
- красный керамический кирпич;
- красный поризованный кирпич.
Керамический подойдет для облицовки и кладки. Блоки производят полнотелыми или пустотелыми. Первые обладают большей несущей способностью, вторые — теплоизоляционными свойствами. Полнотелый кирпич укладывают в два ряда, если из него возводят стены бани. Пустотелый не подходит для цоколей и дымоходов.
Поризованные блоки представляют собой формованную смесь с глиной, в которую добавляют опилки
При обжиге последние превращаются в пепел, образуя пустоты, что важно для теплоизоляционных свойств. Теплопроводность сравнима с той, которой обладает оцилиндрованный брус. Преимущества: звукоизоляция, небольшой вес и прочность
Преимущества: звукоизоляция, небольшой вес и прочность.
Совет! Если предусмотрено утепление стен бани минеральной ватой и обустройство гидроизоляции, то подойдет и силикатный кирпич для строительства.
Как построить баню из кирпича
Перед строительством кирпичной бани выбирают место на участке согласно нормам СНиП. Ее удаляют от соседского забора на 1 м. При этом скат кровли должен заканчиваться на участке владельца. Если на территории соседа есть постройка из древесины, то расстояние от бани до нее должно быть больше 15 м. Такой же промежуток выдерживают до открытых источников питьевой воды и лесного массива. Не примыкающую к дому кирпичную баню удаляют на 8 м и от проезжей части на 5 м.
После выбора территории определяются с проектом, который необходим для подсчета строительного материала и расчета подводимых коммуникаций. Количество блоков для стен определяют делением площади поверхности на площадь кирпича. Учитывают толщину шва, чтобы не было излишка. Выбирают тип скатной или плоской кровли для кирпичной бани. Последняя не подходит для местности с обильными снегопадами зимой. Для снижения сметы проекта кровлю покрывают профильным листом. Его количество определяют по примеру с кирпичами.
Окна и двери для бани из кирпича приобретают пластиковые. Они устойчивы к воздействию влаги и не деформируются при перепаде температуры. Под красный кирпич подойдут ламинированные рамы с имитацией древесины. Одну створку делают открываемой для проветривания. Внутри парилки ставят небольшое окно для снижения теплопотерь. Входную дверь в баню делают деревянной или пластиковой.
Баня из пеноблоков своими руками: выводы?
Действительно, построить баню из пеноблоков своими руками вполне возможно самостоятельно, при наличии определенных навыков и оборудования.
Немаловажную роль играет приобретение качественного материала для строительство – блоков проверенного производителя. Помните, что ваша собственная безопасность это не то, на чем стоит экономить.
Ведь баня из пеноблоков превосходит по показателям экологичности кирпичные и бетонные бани, и несильно уступает деревянным: брусу или бревну. Особенности утепления деревянных, блочных или кирпичных бань могут повлиять на выбор итогового решения. Широким перечнем достоинств обладают каркасные бани, в пользу которых клиенты нередко делают свой выбор.




































