Что дает применение в строительстве пеноблоков
Внедрение современных разработок в производство строительных материалов обеспечило востребованность пенобетона в качестве базовой основы коттеджей. Технологические характеристики материала обладают следующими достоинствами:
- Ровная поверхность обеспечивает качественную кладку с минимальными потерями тепла через швы.
- Крупные габариты пеноблока способствуют ускорению процесса возведения коттеджа.
- Высокие энергосберегающие параметры. Низкая теплопроводность материала создает условия для облицовки стен без предварительного утепления.
- Дом по проекту из пеноблока сохраняет прохладу в летнюю жару и не теряет тепло зимними холодами. Высокие теплоизоляционные характеристики материала способствуют снижению затрат на обогрев помещения в холодный период.
- Экологическая безопасность ввиду отсутствия выделений вредных веществ. Материал соответствуют всем нормативным требованиям и обладает сертификатами качества.
- Устойчивость перед высокими температурами и воздействием грибка. Пеноблок не горит, на нем не развивается плесень, его не поражают насекомые.
- Пенобетону не страшны перепады температур и взаимодействие с влагой. Он сохраняет свои качества на протяжении всех сезонов.
- Дом по проекту из пеноблока прослужит ни одному поколению, сохраняя свои свойства и привлекательный внешний вид.
- За счет больших размеров блоков расход раствора сокращается.
Внимание! Помимо строительства домов, существуют проекты бань из пеноблоков
3
Самые лучшие проекты домов с мансардой: фото с чертежами
Хороший проект жилого дома должен учитывать многие факторы:
- климат местности, в которой будет вестись строительство;
- особенности грунта и ландшафта участка;
- сочетание отделки дома с окружающими его строениями и местностью;
- организация максимально комфортных условий проживания для всех членов семьи с учётом их возраста и индивидуальных запросов.
Готовый проект дома с мансардой разрабатывают профессиональные архитекторы с участием специалистов узкого профиля
Важно продумать не только расположение комнат, но и особенности размещения инженерных сетей
Для дачного участка подходят проекты небольшой площади, 36 – 40 квадратных метров. Этого пространства вполне достаточно для размещения кухни и просторной гостиной на первом этаже и двух компактных спален или рабочего кабинета в мансарде. Дома с площадью свыше 60 квадратных метров вмещают в себя просторную гостиную, спальню и кухню на первом этаже и комнаты на втором.

Для больших домов идеальным было бы строительство террасы, на которую можно выйти с мансардного этажа. Сверху будет открываться великолепный вид на природу.

Дачный дом с мансардой: планировка 6х6
С минимальной площадью не просто. Проект дачного дома 6х6 с мансардой – оптимальный выбор. В этом случае у вас не 36, а как минимум 50 квадратных метров полезной площади.

Если дача нужна лишь для сезонного посещения, такого пространства вполне достаточно для небольшой семьи. Со временем к дому можно сделать пристройку, если количество членов семьи увеличится. Что следует учитывать в проекте дома с мансардой 6х6:
- максимальное использование каждого сантиметра площади;
- количество людей, одновременно посещающих дом;
- возраст членов семьи;
- периодичность посещения дачного участка.
При планировке дома 6 на 6 с мансардой важно использовать все пространство с максимальной пользой. Традиционно по центру располагают просторную гостиную, имеющую выход в санузел и кухню
Все эти комнаты полностью займут первый этаж. Чтобы не было тесно, подбирают компактную мебель.

Кухня должна иметь два входа: из комнаты и со двора. Сервировка стола в летней беседке значительно упростится, да и готовить в жаркий день будет легче, настежь открыв выход в сад.
В этом варианте размещаются в мансарде. Здесь можно сделать две полноценные спальни для хозяев и детей.
Для санузла достаточно четырёх квадратных метров. Если дача посещается только летом, летний душ можно организовать во дворе. Любители попариться ставят на участке баньку. Если не предусматривать душ или ванную в доме, можно оставить для туалета три квадратных метра. Стиральную машину при этом устанавливают в кухне.
Каркасные дома с мансардой (проекты 6х6) не предусматривают внутренних лестниц. Их размещают снаружи. Этот приём тоже позволяет значительно сэкономить пространство. Для хранения вещей в доме следует предусмотреть компактные антресоли.
Вот примерный план дома с мансардой 6 на 6:

Специфика планировки домов 9 на 9 с мансардой: фото удачных решений
Дом общей площадью восемьдесят квадратных метров – популярный проект. Строители отмечают, что этот проект имеет оптимальное соотношение затрат и комфорта проживания. Классическая планировка включает в себя спальню, кухню, гостиную и санузел на первом этаже и ещё две-три комнаты на мансарде. Их можно использовать как дополнительные спальни или организовать в них рабочий кабинет, творческую мастерскую и просторный гардероб.

Ещё один вариант расположения комнат – в планировке дома 8 на 10 с мансардой. Фото пример такой планировки:

Что следует знать о планировке дома 10 на 10 с мансардой: фото лучших идей
Сто квадратных метров на первом этаже и ещё семьдесят на втором – в таком доме может постоянно проживать большое семейство. Здесь найдётся место для отдельных комнат детям, спальни родителям, рабочему кабинету, просторной гостиной и кухне. Со стороны дом не выглядит огромным. Проекты дома 10х10 с мансардой из пеноблока производят впечатление компактностью размещения на участке. Но это как раз тот случай, когда внешнее впечатление обманчиво.
Здесь достаточно места не только для размещения санузлов на каждом этаже, но и даже для организации или баньки прямо в доме. Удобная лестница с широким проходом позволит без труда поднять громоздкую мебель.

В таком доме обычно предусматривают отдельное помещение для котла. Если в доме из пеноблоков есть цокольный этаж, прачечная, приборы отопления, кладовая для хранения инвентаря и домашних закаток размещаются здесь.
Пример планировки:

Статья по теме:
Какой проект дома выбрать: один или два этажа
Возможности современного проектирования жилых домов делают условным название «одноэтажный дом». План постройки дома может предусматривать оборудование цокольного этажа, строительство мансарды. Коттедж с такими пристройками получится трехуровневым в проекте одноэтажного дома. Мансарду и цокольный этаж нельзя назвать этажами, но такие помещения сделают жилье более удобным и увеличивают полезную площадь дома.
На цокольном этаже обычно оборудуют хозяйственный сектор, устанавливают спортивные тренажеры, выводят коммуникации. Здесь можно оборудовать котельную, сделать гараж. Мансарда может быть оборудована спальнями и детскими комнатами.
Пример планировки дома с цокольным и мансардным этажамиИсточник medicroslavl.ru
Если вас не привлекает дом с дополнительными уровнями, планировать комнаты следует с учетом эффективного использования площади. В доме необходимо обеспечить помещения для всех членов семьи, а кухню и столовую совместить. Также поступают с туалетом и ванной. Разграничить зоны поможет строительство невысоких перегородок, колонн.
Двухэтажный дом строят для большой семьи. На втором этаже планируют жилые комнаты для домочадцев. На первом – обустраивают гостиную, кухню, спальню для гостей. При совместном проживании нескольких поколений, старшим членам семьи отводят комнаты внизу. Санузлы на этажах размещают друг над другом. Это облегчает подвод коммуникаций.
Если есть желание оборудовать автономное отопление, котельную устраивают возле кухни, в цокольном помещении или гараже.
Выбирать, какой дом построить, двухэтажный или с одним этажом, следует исходя из размера участка. Если у вас большая семья, а участок маленький, отдать предпочтение лучше двухэтажной конструкции. В таком доме можно выделить личную комнату каждому члену семьи и при этом сэкономить территорию на участке.
Пример планировки двухэтажного домаИсточник centermira.ru
Если семья небольшая, то одноэтажного дома, даже на маленьком участке будет вполне достаточно, ведь двухэтажная конструкция обойдется гораздо дороже.
Преимущества и недостатки дачных домов с мансардой: проекты с полным этажом или жилой чердак?
Главным аргументом в пользу мансардного этажа всегда приводится дешевизна его обустройства. Так ли это на самом деле? Снижение расходов обусловлено использованием каркасной конструкции кровли. На практике, чем больше кровля и, соответственно, больше площадь каркаса для обшивки, тем выгоднее мансарда.
Но следует помнить, каким бы просторным не был чердак, он в любом случае занимает меньше полезной площади, чем настоящий этаж. Получается, чтобы сделать мансардное помещение годным для проживания, необходимо предусмотреть такую площадь первого этажа, чтобы она превышала чердачную минимум в два раза.

Чтобы в мансардном помещении создать нормальный микроклимат, необходимо предусмотреть систему вентиляции с принудительной подачей воздуха. Все эти расходы лягут дополнительным бременем при строительстве. И на деле экономия не будет такой уж значительной.
Сторонники мансардного строительства отмечают, что дома с такими «фигурными» крышами выглядят привлекательно. А дизайнеры добавляют, что обустройство жилого чердака имеет множество оригинальных решений.

Рачительные хозяева не любят, когда что-то пропадает зря. В том числе – чердачное пространство. Некоторые превращают его в свалку ненужных вещей. Но на самом деле здесь может разместиться полноценный рабочий кабинет, мастерская, спальня или даже детская комната.
Противники такой рачительности напоминают, что активная эксплуатация пространства под кровлей ухудшает состояние конструкции крыши и значительно усложняет её ремонт.
Точка зрения эксперта
Ярослава Галайко
Ведущий дизайнер и руководитель студии Ecologica Interiors
«Психологи предупреждают, что низкие потолки мансарды заставляют человека чувствовать себя в замкнутом пространстве, неблагоприятно воздействуя на его психику. Особо впечатлительные натуры даже могут ощущать приступы удушья из-за низких потолков и скошенных стенок. Стоит задуматься об этом факте, планируя детскую комнату на чердаке.»
Сторонники полноценного второго этажа приводят такое сравнение:
| Мансарда | Второй этаж |
|---|---|
![]() | ![]() |
| Ограничена в планировке наклонными конструкциями | Имеет полноценные варианты планировки |
| Сложности с обустройством полноценных окон | Отсутствие проблем с организацией естественного освещения |
| Конструкция стенок и потолка мансарды не позволяет беспрепятственно ремонтировать кровлю | Ремонтопригодность крыши и простота конструкции кровли |
| Необходимость в обустройстве сложной кровли | Использование крыши простой формы |
| Потребность в принудительной вентиляции | Использование естественной вентиляции |
| Сильный нагрев помещения в жаркие дни | Сохранение оптимальной температуры благодаря наличию чердачного пространства |
Не смотря на все эти споры и разногласия, проекты дачных домов с мансардой и верандой или гаражом пользуются большой популярностью. Это неудивительно, ведь набирающее огромную популярность каркасное строительство предлагает множество вариантов именно таких строений, с большой полезной площадью и разнообразными планировками. Рассмотрим фото проекты домов с мансардами подробнее.
Статья по теме:
Дом с мансардой – особенности проектной документации и выбора стройматериалов
Проекты коттеджей с мансардой очень разнообразны. Существуют односкатные, двускатные и даже трехскатные крыши, у них может быть разная высота и угол уклона.
Конструкция самой кровли также имеет множество особенностей. Поэтому следует еще на этапе проектной разработки учесть все нюансы, чтобы получить действительно комфортный мансардный этаж.
Мансарда является, по сути, продолжением крыши, но в отличие от чердака, в ней можно проживать постоянно, как в теплое, так и холодное время года. Плюс она позволяет построить дом с меньшим расходом стройматериалов, поскольку стены устанавливаются не в полную высоту.
Основная ошибка большинства строителей — слишком крутой наклон крыши, а следовательно, низкие и неудобные потолки под ней. Чтобы этого не произошло, следует правильно провести все расчеты, чтобы границы мансарды с кровельным покрытием соответствовали установленным технологическим нормативам.
Перед строительством мансарды нужно правильно составить чертежи, отражающие все этапы строительных работ, и учесть оптимальные величины мест пересечения самой мансарды с началом ломанной линии кровли. Линии их пересечения должны начинаться с высоты не менее 1,5 метров.
Только при соблюдении таких проектных условий можно создать помещение, комфортное для постоянного проживания.
Что касаемо высоты мансардного этажа, санитарно-гигиенические нормативы в жилищном строительстве устанавливают минимальную высоту потолка в помещениях, пригодную для постоянного проживания — не менее 2,5 метров. При проектировании мансарды следует учитывать данный норматив и отвести под помещения с такой высотой не менее 50% пространства.
Также, при разработке проекта дома, следует учитывать соотношение высоты стен и поверхности кровельного покрытия. Для этого следует правильно:
- составить строительные чертежи, отражающие все этапы строительства;
- вывести оптимальное соотношение вертикальной части мансарды с поверхностью кровли;
- выбрать подходящие кровельные материалы;
- подобрать нужные теплоизоляционные материалы.
При соблюдении всех требований и технологических стандартов площадь мансардного помещения будет такой же, как и площадь обычного второго этажа.
Идеи планировки двухэтажного дома
Преимущества и недостатки домов 10 на 10
Главное преимущество подобных домов – их универсальность. Компактные строения удачно впишутся в загородный участок. Не менее органично они будут смотреться в условиях городской среды, где каждый см площади играет огромную роль.
Среди плюсов возведения подобного строения можно выделить:
- невысокие расходы на строительство – не требуется оборудование дорогого фундамента, траты на оплату труда рабочих и приобретение материалов относительно небольшие;
- высокая скорость возведения – весьма существенный нюанс для семей, вынужденных арендовать жилье;
- возможность экономить на коммунальных платежах, за счет сравнительно небольшой площади.
К недостаткам можно отнести все те же компактные габариты, которые не дают возможности создать несколько просторных комнат для каждого члена большой семьи. Такие дома подходят для семей, насчитывающих 3-4 человека.
Дома с двумя этажами и мансардой

По сути дела, это почти трехэтажное здание. Обычно такие проекты выбирают большие семьи с детьми. На первом этаже, например, могут располагаться гостиная, кухня-столовая, санузел и холл с лестницей. На втором — несколько спален, ванная. В мансарде также могут располагаться комнаты или подсобные помещения. Иногда, наоборот, 2 этаж и мансарду делают жилыми, а на первом этаже располагают подсобные помещения или гараж. В таком случае на ночь можно ставить первый этаж под охрану, кроме того, многие люди безопаснее себя чувствуют в спальне, расположенной выше первого этажа.
Если вам нужен просторный, удобный и при этом очень теплый дом, рассмотрите предложенные здесь проекты двухэтажных кирпичных домов без мансарды
. Простая и традиционная форма здания обеспечивает помещениям высокий уровень теплосбережения. Второй этаж, возведенный из обычного добротного стройматериала проще утеплить и защитить от влаги. Мансардные дома, конечно, тоже могут быть достаточно теплыми и сохранять комфортный микроклимат, когда за окном суровые морозы, но чтобы добиться такого эффекта, нужно вложить немалые средства.
Что стоит дороже: мансарда или второй этаж?
При детальном сравнении проектной документации домов с мансардой и двухэтажных коттеджей, застройщики нередко приходят к выводу, что затраты на такое строительство примерно одинаковы.
Вся экономия на отказе от возведения второго этажа сходит на нет за счет больших расходов на современные стройматериалы, необходимые для строительства комфортабельной мансарды. К тому же, она часто становится непригодной для проживания при наличии различных повреждений и деформации кровли, при проведении ремонтных работ на крыше.

Наличие полноценного второго этажа обеспечивает увеличение жилого пространства и позволяет при этом использовать чердак для хозяйственных нужд. При одинаковой общей площади мансарды и второго этажа, выбор во многом зависит от точного учета всех преимуществ и недостатков двухэтажных домов в сравнении с домом, имеющим мансардное пространство.
Выбираем проекты домов с мансардой: фото с чертежами
Если вы хотите заказать готовый проект дома с мансардой, учитывайте, что есть типовые и авторские варианты. Среди небольших типовых решений выделяют:
- постройку 6 на 6 ;
- 9×9 м;
- 10×10 м;
- 8 на 10 м.

Индивидуальные проекты разрабатываются под заказ и готовятся с учетом площади участка и ваших пожеланий к внешнему облику строения. Количество и расположение комнат также продумывается заранее, чтобы правильно распределить перекрытия и рассчитать глубину .
Вот несколько вариантов планировок в разных домах:




Дом с мансардой: планировка 6х6 м с фото
Самый небольшой и аккуратный домик. Такая конструкция впишется в участок любой площади, прекрасно подходит для дачи. В планировке дома 6 на 6 м с мансардой практически отсутствуют коридоры.
Чаще всего размещают одну спальню, гостиную и кухню. «Чердачный» этаж обустраивают под детскую комнату или зону отдыха.

План дома с мансардой 6 на 6 м должен быть хорошо продуман, чтобы жить или проводить в нем лето было комфортно. Классический вариант, когда из прихожей сразу есть доступ к санузлу (его делают совмещенным для экономии пространства) и к . За спрятана спальня или кухня. Для увеличения гостиной ее можно совместить с местом для приготовления пищи, сделав .

Заказывая проект дачного дома 6×6 с мансардой, обращайте внимание на количество комнат, материал изготовления дома и площадь верхнего этажа.
Если в кооперативе нет подключения к центральной канализации, то необязателен, так как его можно вынести на улицу и расположить в другом месте на участке. А также можно сделать кухню и одну большую комнату отдыха
Второй этаж отводят для сна.

Вот несколько интересных проектов домов с мансардой 6×6 м:




Для дачи оптимальными по соотношению цены и качества будут каркасные дома с мансардой 6×6, проекты и стоимость готовых конструкций представлены ниже:
Наименование | Фото | Краткое описание | Стоимость, руб. | |
| Каркасный дом К-5 | ![]() | Жилая площадь | 36 м² | 405 000 |
| Общая | 45 м² | |||
| Сроки строительства | 2 недели | |||
| Толщина стен | 182 мм | |||
| Уплотнитель | 15 см | |||
| Внешняя отделка | Сухая вагонка | |||
| Одноэтажный дом в компании «Русская построечка» Проект – 1 | ![]() | Жилая площадь | 35 м² | 460 000 |
| Общая | 44 м² | |||
| Сроки строительства | 25 дней | |||
| Толщина стен | 20 см | |||
| Уплотнитель | 10 см | |||
| Внешняя отделка | Обрешетка из |
В зависимости от метража, толщины стен, слоя и время на выполнение работы стоимость будет меняться. Чем тоньше стены, тем дешевле постройка.
Можете посмотреть видео-обзор готового каркасного дома 6 на 6 м с внутренней и внешней отделкой:
Фото планировок дома 9 на 9 м с мансардой
Среди вариантов конструкций потребители отдают предпочтение , которые дешевле кирпича, но при этом обладают хорошими свойствами теплоизоляции, поэтому конструкции получаются недорогими.

Вариантов планировок с площадью 9 на 9 м уже больше. Можно сделать небольшой коридор, разделить пространство на 2 спальни и гостиную, выведя отдельно санузел и кухню.
Вот несколько простых и комфортных моделей расстановок перегородок:




Интересен вариант планировки дома 8 на 10 м с мансардой, фото которой представлены ниже. По жилой и общей площади такая конструкция соответствует варианту 9×9 м, но удобнее для расположения на вытянутых участках.




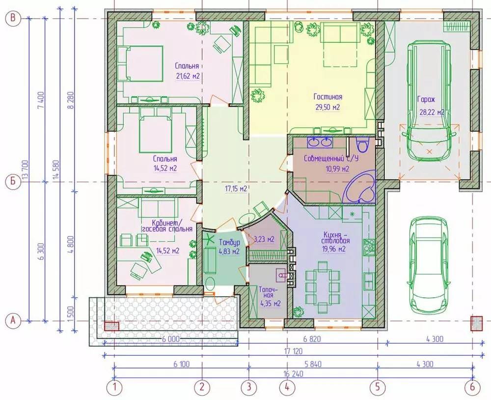
Фото планировки дома 10 на 10 м с мансардой: особенности конструкций

Покупая проект, обязательно обращайте внимание на разводку коммуникаций. Она должна включать:
- Подключение к электроэнергии, распределение проводов и по этажам.
- Водоснабжение. Если нет рядом магистрального водопровода, то возможности установки и места для забора воды на участке.
- Отопление. Каким образом будет отапливаться дом: газ, вода, твердое топливо. И где будут стоять батареи.
- . Есть ли магистраль или требуется установка септиков.

Все эти нюансы продумываются на этапе составления проекта, сметы и всей необходимой документации.
Что касается распределения комнат, то оно может быть различным. Вот несколько фото-примеров планировок:




Статья
Двухэтажные дома с мансардой — один из наиболее востребованных вариантов в частном строительстве. Мансарда позволяет использовать пространство под крышей, экономически это выгоднее, чем полноценный этаж, над которым еще должен быть чердак. Кроме того, она предоставляет место для интересных дизайнерских решений.
Также распространение получили проекты домов с цокольным этажом и мансардой. Это позволяет еще больше увеличить полезную площадь, получив практически трехэтажное здание. Однако такой проект будет стоить значительно меньше, чем трехэтажный.

Важно!
Помните, что в готовых проектах двухэтажным домом с мансардой могут называть как здание с двумя полноценными этажами и мансардой сверху, так и одноэтажный дом с мансардой

Особенности дизайна
Дизайнерское оформление мансарды зависит от назначения помещения. Его можно приспособить под спортивную комнату, библиотеку, рабочий кабинет, сделать зоной отдыха или оборудовать зимний сад. Некоторые собственники отводят часть мансардного этажа для мастерской или же делают часть помещения открытой зоной.
Отличный дизайнерский вариант — оборудование в мансарде прозрачного потолка, через который ночью можно наблюдать за звездным небом. Важным вопросом является обеспечение достаточного освещения в небольшом мансардном помещении. Для этого требуется монтировать световые отверстия для установки окон.
Для того, чтобы под скатами не было темных углов, стены мансарды должны быть светлых тонов. При обустройстве мансардных помещений не рекомендуется использовать большие светильники или люстры. Оптимальный вариант защититься от солнечных лучей — установить ролл-ставни.
Одним из наиболее главных аргументов в пользу мансардных этажей является тот факт, что частные дома со сложной и высокой формой крыши смотрятся намного изысканней и выразительней. Здания с мансардой имеют оригинальный и привлекательный внешний вид.
Жилые комнаты и спальни с большими окнами в небо и уникальными наклонными стенами оценили современные архитекторы, проектировщики и дизайнеры.
Таким образом, собственник может получить полноценный блок, в котором можно оборудовать спальню, личный кабинет, зону отдыха, тренажерный зал
Важно правильно утеплить зону, провести коммуникации и вентиляцию. Тогда мансардный этаж можно использовать для круглогодичного проживания. Выбирая между полноценным вторым этажом и мансардой, важно понимать отличия этих помещений
Большинство собственников останавливаются на мансардном этаже, который выгоден в плане финансов, а также более эстетично и оригинально смотрится снаружи здания
Выбирая между полноценным вторым этажом и мансардой, важно понимать отличия этих помещений. Большинство собственников останавливаются на мансардном этаже, который выгоден в плане финансов, а также более эстетично и оригинально смотрится снаружи здания. Полезное видео: Плюсы и минусы мансарды
Полезное видео: Плюсы и минусы мансарды
Что учесть при строительстве мансарды
Надстройка дома может быть выполнена за счет реконструкции крыши. В этом случае функцию стен будут выполнять скаты. Свободное пространство, которое образуется под ними можно использовать в качестве спальни, детской, кабинета. При этом форма крыши и ее высота напрямую влияют на планировку мансарды.
К преимуществам можно отнести:
- экономичность;
- оригинальную планировку;
- повышение теплоэффективности частного дома без существенных затрат на энергию;
- преображение фасада за счет добавления новых архитектурных деталей –балкона, оконного люка в конструкции крыши.
Стоит сразу учесть некоторые недостатки. Мансардная надстройка второго этажа по площади будет меньше, чем полноценная комната. Особенности конструкции крыши сказываются на планировке чердачного пространства. Это потребуется учесть при выборе дизайна интерьера.
Оконные проемы часто размещают во фронтонах, но с появлением современных технологий большую популярность приобрели оконные люки и это несомненный плюс – света станет гораздо больше. Рассмотрим основные нюансы устройства мансардной надстройки второго этажа в частном доме.
Мансардная пристройка второго этажа к старому дому – это оптимальный способ увеличить этажность строения, так как она не оказывает серьезного давления на основание. Изначально в частном доме перемычки стропильной системы могут быть расположены высоко, в результате чего есть возможность обустроить жилое помещение на чердаке.
Для этого потребуется:
- утеплить перекрытие и смонтировать конструкцию пола;
- утеплить скаты надстройки второго этажа;
- смонтировать перегородки, чтобы комната приобрела правильные геометрические параметры или вписать интерьер в существующее пространство.
Чтобы подняться на мансарду потребуется провести реконструкцию перекрытия частного дома – изготовить в нем отверстие и смонтировать лестницу.
Она должна быть компактной, но при этом надежной и безопасной. Выбирать материал и дизайн лестницы следует с учетом стилистики надстройки второго этажа и частного дома в целом. Свободное пространство под лестницей можно использовать с пользой: под кладовую, стеллажи, гардероб.
Мансардная надстройка второго этажа в частном доме требует тщательного утепления. Для этих целей подойдет минеральная вата.
Сверху на нее обязательно закрепляют пароизоляцию. При выборе утеплителя и способа его защиты от конденсата обязательно учитывают материал кровельного покрытия. Все эти тонкости знакомы профессиональным мастерам, поэтому работу лучше доверить им.
Выбирать материал для кровли необходимо на основе расчетов. Они дают понятие о том, в каком состоянии находится основание и какую нагрузку оно способно выдержать.
Мансардная надстройка второго этажа деревянного дома по рекомендации специалистов не должна изготавливается с использованием тяжелых кровельных материалов. К легким разновидностям относят металлическую кровлю, гибкую черепицу и имитацию шифера – ондулин:
При использовании ондулина крыша частного дома подвергается самой маленькой нагрузке – около 3 кг на м². Надстройка второго этажа частного дома с покрытием крыши из металлочерепицы испытывает нагрузку от 4 до 6 кг на м². Материал отличается длительным эксплуатационным сроком, разнообразием профилей и оттенков. Гибкая черепица оказывает нагрузку на конструкцию крыши надстройки примерно 6 кг на м²
Важное условие монтажа – наличие сплошной обрешетки. Если выполняется полноценная надстройка 2 этажа на старый дом, то при наличии надежных несущих конструкций, крышу можно покрыть шифером или цементно-песчаной черепицей
Если выполняется полноценная надстройка 2 этажа на старый дом, то при наличии надежных несущих конструкций, крышу можно покрыть шифером или цементно-песчаной черепицей.




































