Sweet Home 3D


Программа больше подходит для простых пользователей или новичков в области дизайна и проектирования, чем для опытного дизайнера. Но именно простотой пользования она и завоевала популярность.
Большие проекты в приложении вряд ли удастся создать. Но зато можно поэкспериментировать с перестановкой мебели. План небольшого помещения создается всего за несколько минут.
Встроенный каталог объектов не отличается большим многообразием предметов, цветов и фактуры. Но все дополнительные элементы можно скачать на официальном сайте.
Основные преимущества:
- простота создания плана помещения в объеме;
- есть русскоязычная версия;
- разрешается выстраивание помещения на основе отсканированного изображения;
- в проекте добавляются надписи.
Недостатки:
- нельзя менять форму и размеры объектов;
- не подходит для профессионального использования.
Крыша для дома с мансардой
Мансарды пришли к нам с легкой подачи французского архитектора Франсуа Мансара, так что в своем классическом исполнении они сохранили флер французской утонченности. Это подчеркивают классические двухскатные крыши со слуховыми окнами и фахверковыми фронтонами. В противовес современная скандинавская мода – четырехскатные крыши под цвет фасадов.
Легкий оттенок средиземноморского стиля придают многощипцовые крыши причудливой формы. Ими можно укрыть сразу несколько мансард в больших коттеджах. Викторианские особняки принесли моду на асимметричные кровли с изогнутыми линиями на фронтонах. Английским домам с мансардой свойственен большой уклон скатов, а в современной интерпретации – вальмовые крыши.
В небольших европейских городках все чаще встречаются маленькие частные дома с аккуратной односкатной кровлей над мансардой. Это очень минималистично, функционально и сравнительно бюджетно. А модна на эко-тренды и энергоэффективность привела к активному использованию массивного остекления и солнечных панелей.
Все классические виды черепицы хороши своим аккуратным внешним видом и огнеупорными свойствами. Но штучные материалы всегда дороже, с ними сложнее работать и они тяжелее и требуют укрепления. Листовая металлочерепица или профнастил легко настилаются, но не годятся для сложных форм кровли и шумят во время дождя.
Рекомендации, которые лучше знать в начале пути
Точно по такому же принципу монтируется мансардный этаж с двухскатной крышей. Причём его устройство еще проще – все стропила сплошные.
Далее предстоит утепление крыши. Конечно, его можно делать снаружи, до монтажа мембраны, обрешётки и кровли. Но безопасней изнутри – не будет угрозы осадков и работы выполняться более тщательно, ведь от этого зависит успешная эксплуатация.
Утеплитель изнутри помещения защищается пароизоляционной плёнкой. А между ней и внутренней отделкой обязательное устройство вентиляционного зазора – внутренняя отделка не монтируется непосредственно на стропила. Для неё специально, так же как снаружи для обрешётки, набивается контррейка, или устраивается каркас.
Что такое мансарда
Конструкция представляет собой чердачное помещение, которое переделали в жилую комнату. Фасад и стены строения образуются из скатов кровли. Из-за особенностей строения крыши внутреннее пространство ограничено, а невысокий потолок расположен под углом.
Мансарда может занимать верхний этаж как полностью, так и частично. По строительным нормам в жилом помещении должно быть естественное освещение. Вертикальные или горизонтальные окна монтируют на кровле. За счет расположения конструкции пропускают света больше, чем в обычных комнатах. Между ярусами устанавливают лестницу.
Чердачное помещение часто переоборудуют под детскую, гостевую спальню или кабинет. Преимущества использования мансарды:
- Оригинальный дизайн. Из-за технических особенностей стен, потолка в комнате создают индивидуальный интерьер.
- Красивый экстерьер. Мансардные дома выглядят более элегантными, чем коттеджи с 2 этажами.
- Сохранение тепла. При соблюдении строительных норм дополнительное пространство не позволит пройти холоду на нижние ярусы.
К недостаткам сооружений относят ограниченность полезной площади. В чердачных помещениях глухие зоны и низкие потолки, которые имеют неодинаковую высоту по центру и в углах. Чтобы пребывание в комнате было комфортным, нужна качественная тепло- и гидроизоляция.
Оригинальное оформлениеИсточник yandex.com
Равномерный подъем потолкаИсточник twitter.com
Определение мансарды
Под мансардой понимается жилое пространство под крышей. Кровля для обустройства жилого чердака должна иметь двойной скат, такой, чтобы высота чердачного пространства была не менее человеческого роста в самой высокой точке.
Оптимальной считается высота в два метра двадцать сантиметров
Наружная стена жилого чердака состоит из двух плоскостей: наклонной и вертикальной. Вертикальная часть строится из основного материала дома, наклонная – состоит из стропил крови и внутренней обшивки.
Соотношение вертикальной и наклонной части зависит от проекта
При строительстве частного дома многие владельцы задумываются над вопросом: отдать предпочтение полноценному этажу или мансарде?
Основные виды построек с мансардой

От особенностей конструкции зависит объем дополнительной площади и комфортность проживания на ней
Основным признаком мансарды считается особенность ее формы, то есть будут отличаться чертежи и фото внешнего облика дома. От особенностей конструкции зависит объем дополнительной площади и комфортность проживания на ней. На сегодняшний день существует такие проекты домов с мансардой:
- Частные проекты дом с мансардой может выполняться на одном уровне с домом. Такие постройки имеют стандартные очертания. Сама мансарда выполняется очень легко как на этапе строительства, так и при перепланировке готового здания.
- Двухуровневый вид мансарды. Внешний вид дома идентичен с первым вариантом, однако в отличие от него – занимает 2 уровня.
- Мансардная конструкция в двухэтажном строении. При такой технике строительства стены помещения ровные, а искос крыши используют в качестве пространства для склада вещей.
По наличию термоизоляции различают такие варианты построек с мансардой:
- Схема летней постройки не содержит дополнительного утепления;
- Зимнее мансардное помещение обязательно выполняется с теплоизоляцией.
Внимание! Зимний вариант допустимо использовать для жилых комнат, которые эксплуатируются в любое время суток
Самые удачные планировки в примерах
Проект дома может быть каким угодно. Некоторые умельцы своими руками создают особенные постройки, которые потом становятся достопримечательностями. Выбор проекта зависит от площади участка и целевого использования. Если территория небольшая, можно поставить небольшой двухэтажный домик, если же площади хватает, допустимо возведение одноэтажного строения. Но перед началом всех работ нужно ответить на несколько вопросов:
- Этот дом для постоянного или сезонного проживания?
- Сколько в нем будет размещаться людей? От этого зависит количество этажей и спален, а также санузлов.
- Нужны ли будут подвал и мансардное пространство?
Небольшой дом из брусаИсточник stroydom-comfort.ru
Площадь постройки составляет 64 кв. м., примерно, такие же размеры имеет двух- или трехкомнатное жилье в многоквартирном строении. Если возвести двухэтажную постройку, площадь увеличится, получится полноценное жилище для большой семьи.
В обязательном порядке стоит выделить место для обустройства:
- прихожей;
- кухни;
- гостиной комнаты;
- одной или двух спален;
- ванной комнаты.
Планировка жилого домаИсточник koffkindom.ru
Второй этаж строения поможет значительно увеличить жилую площадь, но это влечет дополнительные затраты денежных средств. Стоит помнить о том, что дом регулярно нуждается в обслуживании для нормального функционирования систем отопления, водо- и газоснабжения.
Двухэтажное строение 8 на 8Источник stroisam2.ru
Удачный мансардный проект позволяет разместить на первом уровне прихожую, санузел, просторную кухню-гостиную и одну спальню. Второй уровень предназначен для 3 спален площадью 12 и 11 кв. м. и холла.
Если в настоящий момент возведение дополнительного этажа не запланировано, но в будущем такая возможность не исключается, стоит предусмотреть возведение другого этажа. Для этого необходимо сделать более прочный фундамент и качественное перекрытие.
Жилой дом 8 на 8Источник proekton.com
При возведении одноэтажного дома следует определять количество личных комнат, отталкиваясь от состава семьи, дополнительное помещение можно оставить для гостей. На одном этаже вместится прихожая, ванная комната, кухня, гостиная и спальни. Последние должны быть наиболее удалены от входа.
Одноэтажная постройка с удобным расположением комнатИсточник roomester.ru
Кухонное помещение и гостиная могут быть обособленными или объединенными. С точки зрения удобства, кухня-гостиная – наиболее удачный вариант. В ней больше свободного пространства, отсутствие перегородок позволяет разместить большой кухонный гарнитур, барную стойку, обеденную и гостиную зону.
В случае разделения данных функциональных зон места в комнатах будет меньше, но во время приготовления пищи запах не распространится по дому.
План дома с отдельной кухней и гостинойИсточник dachmir.ru
Постройка с удобной планировкойИсточник brusbanya.ru
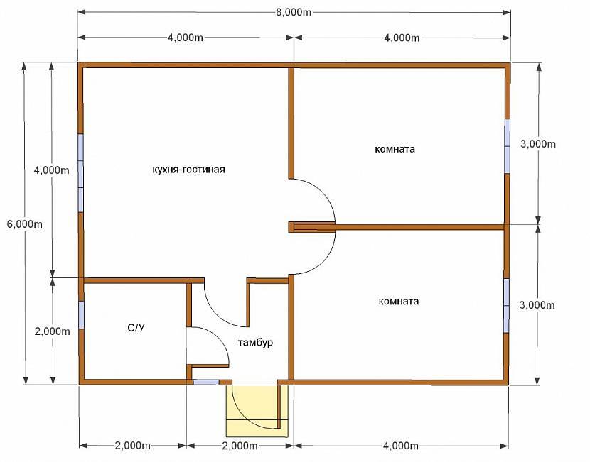
Планировка дома 8 на 8 состоит из кухни-гостиной в левом крыле, холла, тамбура и санузла в центре здания и двух спален в правой части постройки. Площадь кухни гостиной составляет 18 кв. м., этого достаточно для вместительного кухонного гарнитура с барной стойкой или столом- островом, полноценной столовой и просторной зоны для приема гостей. Перед домом находится терраса, здесь можно обустроить место для отдыха.
Просторный двухэтажный жилой домИсточник ibuildrussia.ru
Двухэтажная постройка может иметь два входа. На первом уровне находится гостиная, туалет, ванная и кухня-столовая, а также холл и две прихожие. Лестница ведет на второй уровень, здесь расположен небольшой коридор, рядом с ним кладовая, далее идут 2 спальни, санузел и зал.
В двухэтажном доме основные зоны, а также комната для приема гостей нужно располагать на первом уровне. Второй предназначен для комнат членов семьи.
Что такое мансарда
Конструкция представляет собой чердачное помещение, которое переделали в жилую комнату. Фасад и стены строения образуются из скатов кровли. Из-за особенностей строения крыши внутреннее пространство ограничено, а невысокий потолок расположен под углом.
Мансарда может занимать верхний этаж как полностью, так и частично. По строительным нормам в жилом помещении должно быть естественное освещение. Вертикальные или горизонтальные окна монтируют на кровле. За счет расположения конструкции пропускают света больше, чем в обычных комнатах. Между ярусами устанавливают лестницу.
Чердачное помещение часто переоборудуют под детскую, гостевую спальню или кабинет. Преимущества использования мансарды:
- Оригинальный дизайн. Из-за технических особенностей стен, потолка в комнате создают индивидуальный интерьер.
- Красивый экстерьер. Мансардные дома выглядят более элегантными, чем коттеджи с 2 этажами.
- Сохранение тепла. При соблюдении строительных норм дополнительное пространство не позволит пройти холоду на нижние ярусы.
К недостаткам сооружений относят ограниченность полезной площади. В чердачных помещениях глухие зоны и низкие потолки, которые имеют неодинаковую высоту по центру и в углах. Чтобы пребывание в комнате было комфортным, нужна качественная тепло- и гидроизоляция.
Оригинальное оформлениеИсточник yandex.com
Равномерный подъем потолкаИсточник twitter.com
Homestyler


Одно из лучших приложений для создания дизайнов интерьера. При входе в программу пользователю предложат три варианта функционирования: создание проекта с нуля, использование готового проекта из многочисленной галереи либо же использование готовой схемы.
В Homestyler есть много вариаций цветов, предметов интерьера и освещения, а также мебели, которая представлена в каталогах известных брендов.
Основные преимущества:
- многообразие деталей интерьера;
- в каталогах указана стоимость объектов;
- понятный и удобный интерфейс.
Недостатки:
не разработана версия на русском языке.
Проект и материалы
В составлении сметы важную роль играет учет материалов, которые хозяин намеревается использовать для возведения своего дома 6 на 6 с мансардой.
Для такого типа построек используют:
- кирпич или шлакоблок;
- блоки из пенобетона;
- бетон;
- дерево (бревна или брус);
- СИП-панели.
Учитывая, что мансарда совмещает в себе полноценный жилой этаж и конструкцию крыши дома, ее вес намного меньше, чем масса строительных материалов, которые будут затрачены на постройку стандартного второго этажа. Поэтому для строительства дачного дома, в котором предполагается сезонное проживание, хозяева чаще всего выбирают в качестве основного строительного материала древесину. Нужно отметить, что покупка цельных балок и брусьев такой длины весьма проблематична.
Проект коттеджа 6х6 из деревянного бруса
Цельные деревянные элементы длиной 6 метров стоят дорого. Поэтому придется воспользоваться клееным брусом. Он имеет ряд преимуществ, среди которых — уже выполненная изготовителем пропитка от паразитов и качественная просушка. Каркасный тип дома имеет ряд преимуществ, в том числе — возможность вносить в проект дома изменения прямо в процессе работы. Однако такая постройка нуждается в качественном утеплении. Да и расходы на обогрев будут выше, чем для такого же строения из кирпича или пенобетона.
Каменное строение будет надежным жилищем для обитателей дома 6х6 с мансардой, которые намерены находиться там постоянно, и зимой, и летом. Однако стоимость стройматериалов для возведения объекта будет на порядок выше, чем для деревянной постройки.
Проект дома 6 на 6 из камня с мансардой
Выбор материала делается после того, как хозяин будущего деревянного дома определится с его назначением.
Как выглядят проекты домов с мансардой из пеноблоков
Проекты домов с мансардой из пеноблоков, фото которых вам представлены, пользуются большой популярностью у застройщиков индивидуального жилья. Причины такой востребованности в том, что дома из этого материала очень функциональны и выглядят основательно и роскошно. Стоимость возведения такой конструкции ниже, чем расходы на строительство кирпичного дома.
За счёт мансардного этажа полезная площадь дома значительно увеличивается и при этом расходы в целом меньше, чем на возведение полноценного второго этажа из пеноблоков
Преимущества конструкций из пеноблоков:
- идеальные геометрические формы блоков позволяют создавать прочную и ровную кладку с минимальными швами в несколько миллиметров;
- размеры блоков превосходят размеры кирпича, так что строительство будет вестись ускоренными темпами;
- вспененный бетон отличается высокими показателями энергосбережения и не требует дополнительных утеплителей;
- материал не выделяет токсичные для человеческого организма соединения;
- пенобетон не горюч, не поддерживает развитие плесени и не боится насекомых;
- блоки не деформируются от воздействия влаги или перепада температур;
- материал имеет длительный срок эксплуатации.
Технология строительства конструкций с мансардой имеет некоторые отличительные особенности. Прежде всего, каркас мансарды изготавливается из тщательно просушенной древесины.
Качественный древесный материал не деформируется в процессе эксплуатации
Важно правильно подобрать утеплитель. Для мансард подходят минеральная вата или базальтовые плиты
Эти утеплители хорошо зарекомендовали себя на практике.
Снаружи и внутри кровля обшивается разными материалами. Снаружи укладывается металлочерепица или мягкая кровля. С внутренней стороны каркас обшивается фанерой или плитами OSB.
Точка зрения эксперта
Ярослава Галайко
Ведущий дизайнер и руководитель студии Ecologica Interiors
Задать вопрос
«Типовые проекты очень удобны и стоят дешевле индивидуальных. Но в рамках индивидуального проектирования можно предусмотреть многие нюансы: например, обустройство удобных лестниц для пожилых людей и инвалидов или размещение зимнего сада или рабочего кабинета в мансарде.»
В типовых проектах редко закладывается декоративная обработка фасада.
Чем оформить стены решает сам застройщик
Пеноблоки можно просто покрасить, оштукатурить или использовать для отделки фасадные материала: плитку, сайдинг, камень.
Создание проекта мансардного этажа
Учитывая, что разрабатываемый чертеж дома 6х6 с мансардой предназначен для семьи из трех человек, на верхнем этаже должно быть минимум две спальни. Одна — для родителей, вторая — для ребенка. Размеры каждой из комнат составят 3 х 6 метров, за вычетом пространства, нужного для небольшого тамбура на верхней площадке лестницы.
В каждой из спален можно предусмотрительно запланировать санузел. А возможно включить в проект и общий туалет. Кроме того, при проектировании таких больших помещений в них можно устроить гардеробные и чуланы для хранения несезонной одежды. Для этого можно предусмотреть узкие в плане помещения, без окон, ведь вещи не страдают клаустрофобией.
В случае, если гости будут часто заглядывать в этот дом, следует предусмотреть в мансарде еще одну спальню. Конечно, в этом случае придется немного потесниться, но размеры помещений все равно будут вполне достаточными для нормального проживания.
Создание проекта для реконструкции мансардного этажа
Некоторые хозяева предпочитают работать на втором этаже, где намного тише и никто не мешает. Поэтому кабинет устраивается здесь, а не на первом этаже. Это тоже повлияет на размер помещений. Но если в них не планируется устраивать танцев и спортивных состязаний, то размеры 3 х 3 метра вполне достаточны для устройства уютной спальни или отдельного помещения для занятий делами.
Мансарда в доме 6х6 м
Мансардное помещение является хорошим выбором для увеличения жилого пространства в небольших по размеру домах. Его особенность состоит в том, что жилые комнаты располагаются в чердачном пространстве, которое сделано исключительно из межэтажных перекрытий самого дома. Так как такое помещение имеет высокий уровень теплообмена с окружающей средой, его необходимо качественно утеплить при помощи специального материала.
Для работы с мансардой необходимо знать основы аэродинамики и теплофизики, что поможет правильно построить такой сложный, но практический проект для зданий небольших размеров.
Схема конструкции и обустройства крыши мансарды
Практически все крыши, в том числе и мансардное потолочное покрытие, имеют крепкий деревянный брус, называемый стропильным, из которого состоит всё строение. На стропила крепится всё покрытие, а также обрешётка данного помещения. Из чего состоит мансарда:
- Нижняя обрешётка (в мансарде она сделана из стандартной доски в 22 мм).
- Утеплитель из минеральной ваты. Если не позаботиться об отсутствии влаги на ней, то этот утеплительный слой намокнет и уже не будет эффективным решением для удержания тепла в строении. Необходимо установить дополнительную защиту от влажного воздуха из плёнки или специальной фольги — фольгоизола.
- Специальная плёнка между брусом. Такой дополнительный элемент в крыше позволит защитить уложенный вами утеплитель от губительного воздействия влаги, которая может впитываться в минеральную вату. В зимнее время на верхнем этаже собирается вся влага от отопления вашего дома.
Для того чтобы сделать чертеж мансардного помещения максимально удобным, необходимо подумать о том, какие материалы стоит взять за основу, а также подобрать правильную форму для этой комнаты. Стропильный брус, который стоит использовать при строительстве мансардного этажа, должен иметь размер 150 мм. Такой материал является широко применяемым, и его можно купить на любом строительном рынке. Пространство между досками необходимо заполнить утеплителем. В нашем случае это минеральная вата.
Перед непосредственным контактом ваты и верхнего перекрытия мансарды должна находиться ещё одна плёнка, закреплённая на брусе, назначение которой отличается от той, что была использована после обрешётки. Она должна, наоборот, пропускать всю возможную влагу из утеплителя наружу здания. На эту плёнку можно монтировать кровельную плитку. Использовав каркасное помещение, вы получите дополнительную жилплощадь, которая будет максимально утеплена и позволит разместить одну или несколько комнат.
С мансардой
Идея увеличить жилую площадь за счет мансардного этажа приходит часто. Считается что расходы на строительство при этом не сильно возрастают, так как большая часть надстройки — видоизмененная кровля. В действительности же если мансарда будет эксплуатироваться круглый год, разница в ценнике на двухэтажный дом и одноэтажный с мансардой будет небольшой. Ведь надо учесть, что площадь помещений мансардного этажа значительно меньше, а затраты будут велики, так как требуется хорошая тепло-, звуко-, пароизоляция.

Для кого-то дом мечты выглядит так
Мансарды под двускатной крышей
Действительно дешево обойдется дачный дом с летней мансардой. Но при этом надо учесть, что в солнечные дни без утеплителя там будет слишком жарко, так что теплоизоляция все-таки необходима, но не настолько «серьезнае» как для зимней эксплуатации.

Дачный дом 6*6 с верандой и мансардой
Действительно дешево обойдется дачный дом с летней мансардой. Но при этом надо учесть, что в солнечные дни без утеплителя там будет слишком жарко, так что теплоизоляция все-таки необходима, но не настолько «серьезная» как для зимней эксплуатации.

Небольшой дачный дом 5*4 на две жилых комнаты с мансардой
Проекты дачных домов, представленные выше, предназначены для сезонного посещения. В них предусмотрены только жилые комнаты. В комнате первого этажа можно организовать кухонный уголок.
Ниже приведена планировка маленького садового или дачного дома размером 5 на 5 метров с выделенной кухней
Обратите внимание на то что крыльцо пристроено и на плане его нет

План дачи 5*5 с мансардой и кухней
Все эти домики спроектированы как каркасные. С небольшими изменениями эти проекты подойдут для домов из любого другого материала. Только надо будет учесть толщину стен, правильно выбрать фундамент.

Дача с крытой верандой и мансардой 6*10 метров: поэтажная планировка
При желании крытую веранду можно сделать открытой. Хотя, обычно происходит наоборот. Построив открытую, ее остекляют или выгоняют до половины стены, ставят одинарные рамы. Если хочется свежего воздуха, окна всегда можно распахнуть, а площадь можно отвести под летнюю столовую или кухню.
Как увеличить площадь мансардного этажа
Все проекты дачных домов с мансардным этажом сделаны под двускатную крышу. Это хорошо в том плане, что снег на таких крутых скатах задерживаться не будет. Второй плюс — несложная стропильная система. Минус — малая площадь «полноценной» комнаты на верху. Слишком много неэффективного пространства по краям. Там можно сделать шкафы, но для жилья эта площадь непригодна.

Если крыша мансарды двускатная, много площади теряется
Если вам важно увеличить жилую площадь, кровлю можно сделать ломаной. Она сложнее в устройстве и дороже, но площадь помещений на мансардном этаже значительно больше

Проект дома для дачи 7*7 с мансардой под ломанной крышей и эркером
Еще один способ увеличить площадь — стены выгнать выше уровня первого этажа. Говорят, построить «полтора этажа». Этот вариант хорош для дач, которые посещаются и в холодное время года. Крышу можно делать как вам нравится, но большая площадь комнат все также получается под ломанной.

Пример «полуторного этажа»
При выборе проекта дачного дома с мансардой для периодического посещения лучше делать мансарду холодной, а перекрытие делать утепленным. На лестнице, которая ведет на второй этаж, надо предусмотреть дверь/крышку, которая будет отгораживать верхний ярус. В противном случае на отопление уходить будет много топлива и времени. Зимой людей, обычно, меньше, посещения кратковременные. Разогревать оба этажа слишком долго и дорого, так что решение неплохое.

































