Особенности оконного профиля серии ALT W72
Теплопередача алюминиевой рамы
Терморазрыв алюминиевой рамы
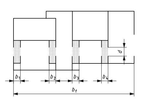
На рисунке 5 показаны основные конструкционные характеристики алюминиевой рамы с терморазвязкой в виде полиамидных вставок.

Рисунок 5 – Алюминиевая рама с полиамидными вставками: 0,2 < λ ≤ 0,3 Вт/(м2 К) b1 + b2 + b3 + b4 ≤ 0,2 bf
Коэффициент теплопередачи оконной рамы из алюминиевых профилей с терморазрывом зависит от:
- коэффициента теплопроводности материала терморазрыва;
- длины терморазрыва, d, то есть минимального расстояния между наружным и внутренним алюминиевыми профилями;
- ширины терморазрыва, b1+b2+b3+b4;
- отношения общей ширины терморазрыва (b1+b2+b3+b4) к ширине рамы bf.
Длина терморазрыва
Производители алюминиевых окон обычно декларируют длину (или ширину) полиамидных вставок, которые образуют терморазрыв в алюминиевых профилях рамы. Однако эти полиамидные вставки имеют заделку в алюминиевых профилях не менее 2,5 мм с каждой стороны. Поэтому, если применяются полиамидные вставки, например, длиной 34 мм, то они обеспечивают эффективный терморазрыв в лучшем случае длиной всего 29 мм.
Формула
Формула для вычисления коэффициента теплопередачи рамы алюминиевого окна выглядит следующим образом:

где Af,i /Af,di – отношение площади проекции внутренней поверхности рамы на плоскость окна к полной внутренней поверхности рамы (рисунок 6); Af,e /Af,de – отношение площади проекции наружной поверхности рамы на плоскость окна к полной наружной поверхности рамы (рисунок 6); Rsi – сопротивление теплопередаче внутренней поверхности рамы (прослойки воздуха на внутренней поверхности рамы), (м2 ·К)/Вт; Rse – сопротивление теплопередаче наружной поверхности рамы (прослойки воздуха на наружной поверхности рамы), (м2·К)/Вт; Rf – сопротивление теплопередаче сечения рамы, (м2·К)/Вт.
Рисунок 6 – Параметры формы алюминиевой рамы, которые влияют на величину ее коэффициета теплопередачи
Сопротивление теплопередаче алюминиевой рамы
Сопротивление рамы алюминиевого окна без терморазрыва принимается равным нулю: Rf = 0.
Минимальное сопротивление алюминиевой рамы в зависимости от длины терморазрыва d принимается по сплошной линии графика на рисунке 7.
Рисунок 7 – Величины Rf для алюминиевой рамы с терморазрывом
Заштрихованная область на рисунке 7 выше сплошной линии соответствует величинам сопротивления теплопередаче рамы, полученным для различных алюминиевых окон при различных условиях в различных европейских странах. Поэтому верхнюю линию надо понимать как практический максимум сопротивления теплопередаче алюминиевых рам для заданных величин терморазрыва d.
Какие существуют производители?
Окна из теплого алюминия производятся большим количеством российских и зарубежных компаний; перечислять все смысла не имеет, однако стоит выделить наиболее популярные из них. Одним из лучших производителей считается компания Schuco. Это ведущий немецкий производитель, хорошо известный не только на родине, но и за ее пределами; окна этой компании достаточно дорогие. Более дешевым, но не уступающим по качеству производителем является Алютех. Производство этой фирмы находится в России, поэтому цены значительно ниже.
Профиль с деревянными накладками
Крупнейшим производителем является Шуко. Данная компания выделяется среди прочих тем, что может предложить покупателю широчайший выбор моделей. В ассортименте производителя насчитывается около 20 тысяч позиций, включая не только сами профили, но и фурнитуру к ним. Эта компания поможет подобрать изделие любой сложности, подходящее к любому архитектурному замыслу.
Алютех может предложить менее разнообразный ассортимент, зато он выгодно отличается доступными ценами. При этом качество продукции ничем не уступает более дорогим аналогам.
Разновидности профиля и систем алюминиевого профиля
При покупке профиля нужно обращать внимание на его заполнение. Разница может заключаться в том, какой установлен стеклопакет, толщине самого профиля, наличии или отсутствии защитной пленки. Теплый алюминий для окон – отличное решение для помещения любого типа
Легкие теплые профили подойдут как для ветхого жилья, так и для современного строения, они смогут надежно защитить от ненастья
Теплый алюминий для окон – отличное решение для помещения любого типа. Легкие теплые профили подойдут как для ветхого жилья, так и для современного строения, они смогут надежно защитить от ненастья.
2017-02-07
Теплое алюминиевое остекление лоджий не слишком распространено в России. В процентном соотношении оно составляет примерно 20% от общего числа алюминиевых профилей. Это связано в первую очередь с тем, что оно тяжелее холодных светопрозрачных конструкций из алюминия, а большинство отечественных балконных плит не рассчитаны на такую нагрузку. Но все же теплое остекление балкона алюминиевым профилем имеет место, поэтому давайте выясним все его нюансы, достоинства и недостатки.
№8. Лучшие производители алюминиевых окон
Производство алюминиевого окна – достаточно сложная технология, требующая использования специфического оборудования, поэтому лучше доверять свой выбор только проверенным производителям. Они дают гарантию на свою продукцию и, к тому же, постоянно радуют инновациями, увеличивающими функциональность и энергоэффективность конструкции. Остановимся на лучших производителях алюминиевых окон.
Schuco
Эта немецкая компания является лидером на рынке алюминиевых окон. Работает с 1951 года, стояла у истоков производства алюминиевых профилей, а сегодня окна Schuco используются по всему миру. Это удобные, максимально продуманные и практичные конструкции, которые обладают отличным дизайном, могут быть окрашены в любой цвет по RAL-карте. Алюминиевые окна компании обладают энергоэффективностью на уровне пассивного дома. При производстве используются стеклопакеты и фурнитура проверенных производителей.
Provedal
Известная испанская компания также давно фигурирует на рынке алюминиевых окон. Главная особенность заключается в том, что при производстве используется анодирование, поэтому покрытие получается максимально долговечным. Окна компании пользуются повышенным спросом в десятках стран мира.
Reynaers
Reynaers – компания из Бельгии, которая постоянно расширяет ассортимент выпускаемой продукции. Производителя отличает широчайшая гамма цветов профиля, высокая долговечность продукции, ее функциональность и продуманность. Не так давно в ассортимент были введены дерево-алюминиевые окна, которые пользуются большим спросом на отечественном рынке.
Profilco
Греческая компания Profilco работает с 2001 года, но за это время успела себя зарекомендовать как надежного профессионала, который быстро реагирует на требования рынка и готов постоянно представлять новые решения. В состав компании входит крупный научно-исследовательский центр, вся продукция соответствует самым строгим мировым требованиям к качеству и безопасности. Сеть торговых представительств широко развита, поэтому отечественные покупатели могут заказывать продукцию ведущего европейского производителя.
ALUMIL S.A.
Это одна из самых крупных компаний, занимающихся алюминиевой экструзией в Юго-Восточной Европе. Производства располагаются в таких странах, как Греция, Румыния, Болгария, Албания, Сербия. В состав холдинга входят филиалы и торговые представительства во всем мире. Научно-исследовательский центр постоянно работает над усовершенствованием алюминиевых систем, ведется строгий контроль качества продукции. Компания предлагает несколько вариантов исполнения алюминиевых окон и массу вариантов цветов исполнения профиля.
ACG Windows & Doors
Китайский лидер в сфере производства алюминиевых окон уже давно широко представлен на отечественном рынке. Продукции компании присуща доступная цена и высокий уровень качества. Профиль может иметь любой цвет, благодаря чему будет вписываться в любой стиль интерьера. Продукция пользуется спросом не только на отечественном рынке, но и по всему миру.
Реалит
Завод алюминиевых профилей «Реалит» работает с 2002 года, оснащен самыми современными технологическими линиями, и сегодня может предложить качественный алюминиевый профиль, который используется в дальнейшем для производства алюминиевых окон. В ассортименте есть профили для холодных и теплых окон. Профили для теплых алюминиевых окон снабжаются двумя вставками теплоизолятора.
№1. Основные преимущества алюминиевых окон
Профили алюминиевых окон изготавливаются методом горячего прессования из сплава на основе алюминия, в который входят такие добавки, как магний и кремний, последний иногда заменяют медью. Благодаря данным компонентам готовый материал приобретает необходимые показатели прочности, жесткости и способность выдерживать большие нагрузки. Толщина стенки алюминиевого оконного профиля, как правило, составляет 1,5-2 мм, но есть и облегченные системы со стенками 1,2-1,3 мм.
Широкой популярностью алюминиевые окна обязаны огромному количеству преимуществ:
прочность. Благодаря использованию добавок, описанных выше, удается получить профиль, который выдерживает стеклопакеты практически любого веса и конфигурации. Это стало конкурентным преимуществом алюминиевого профиля;
- надежность. Профиль отлично переносит удары, он стойкий к истиранию, за ним легко ухаживать, а в случае появления вмятин их несложно устранить, поэтому можно говорить и о высокой степени ремонтопригодности;
- устойчивость к негативным факторам окружающей среды. Алюминиевый профиль не боится дождя и снега, солнечного света, перепадов температур и даже кислотные осадки его не повредят. Покрытие специальными лакокрасочными составами только повышает устойчивость материала;
- легкость. Порой вес оконной конструкции не позволяет реализовывать смелые дизайнерские решения, так как создается чрезмерная нагрузка на несущие опоры. С алюминиевым профилем можно спокойно устанавливать самые большие окна;
- долговечность. Многие производители дают гарантии на алюминиевые окна на 50-80 лет. По данному показателю алюминиевый профиль опережает другие материалы;
пожаробезопасность;
- экологичность. Алюминий – природный элемент, технология производства не предусматривает использование токсичных материалов, поэтому готовый профиль не будет выделять в воздух никаких вредных веществ;
- пластичность. Данное свойство алюминия позволяет изготавливать окна любых форм. Это могут быть овальные, круглые, многоугольные и прочие фантазийные конструкции;
- неплохой дизайн. Еще недавно алюминиевые окна редко ставили в жилых помещениях ввиду их невысокой эстетичности. Сегодня ситуация диаметрально противоположная. Профиль может быть окрашен в любой цвет методом порошковой окраски или анодированием, он может быть декорирован под дерево, причем очень точно.
Среди главных недостатков стоит выделить:
стоимость. Цена алюминиевых окон не самая низкая, но с учетом долговечности и прочности конструкции подобные траты более чем оправданы;
- высокая теплопроводность алюминия. Это значит, что в жаркий день профиль быстро нагревается, а холодный – промерзает. Эта проблема, к счастью, давно решена – производители используются слой теплоизолирующего материала, за счет чего конструкция получает отличные характеристики тепло— и звукоизоляции;
- алюминиевый профиль не пропускает воздух, поэтому нужно будет позаботиться о надежной системе вентиляции.
Алюминиевые профили Alutech в Санкт-Петербурге
Лидер рынка роллет и алюминиевых систем остекления в Восточной Европе, компания, объединившая под своим началом 6 производственных предприятий в 6-ти разных странах и более 25 компаний сбыта с самой разнообразной географией размещения, миллионы завершенных проектов в 65 разных уголках мира и выгодные партнерские программы – все это группа компаний Alutech, оригинальная продукция которой теперь представлена и у нас!
Алютех – принципиальность, комплексность, современность
- профессиональный подход;
- использование качественного сырья и материалов;
- собственные производственные комплексы, оснащенные высокотехнологичным оборудованием;
- жесткие испытания качества, отслеживающие свыше 50 параметров проверки посредством 40 контрольных методов.
Постоянное прохождение продукцией Alutech сертификации в самых авторитетных европейских центрах, а также всеобщее признание на мировом рынке сбыта – лучшие показатели качества профильных систем этой марки.В своей деятельности компания руководствуется не только международными стандартами и требованиями к производству, но также и собственными понятиями об этике бизнеса и эстетике качества. Для Вас, как для заказчика, это означает, что оригинальные алюминиевые системы Алютех всегда оправдывают свою стоимость, а технологичность и надежность в них удивительным образом сочетается с многофункциональностью и изяществом форм.
Алюминиевые окна Алютех
Основная специализация международного объединения Alutech – автоматические ворота, роллеты, а также профильные алюминиевые системы, применяемые для изготовления высокопрочных оконных и дверных конструкций, фасадов, офисных перегородок.Множество архитектурных и интерьерных решений, обширные производственные комплексы с современными линиями сборки, многоуровневый контроль качества на каждом этапе изготовления – вот что позволяет компании Алютех выпускать одни из самых конкурентноспособных товаров во всей Европе.
Технология производства алюминиевых окон

Рис. 11. Производство окна.
Алюминиевые окна обладают более высокой по сравнению с ПВХ-профилями ценой в силу, в первую очередь, трудоемкости их производства. Не будем очень детально и технологически дотошно рассматривать всю процедуру – отметим лишь важнейшие ее этапы:
- Алюминиевые слепки нагреваются в специальной печи, для того чтобы облегчить работу с ними;
- Нарезается металлический профиль, согласно требуемым размерам заказчика;
- Совершается фрезеровка торцов импоста (деталей, отвечающих за удержание створок в раме) на специальном станке;
- Пробиваются все необходимые отверстия для фурнитуры и функционирования окна;
- Сверлятся специальные отверстия под конкретные замки и комплектующие;
- Заготовленный каркас продувается сжатым воздухом для избавления от металлической стружки и пыли;
- Устанавливается уплотнитель, фурнитура, ручка, крепежные элементы и петли;
- Зажимаются углы профиля, уплотнитель в углах проклеивается;
- Соединяются рама и створки окна;
- Выполняется установка стеклопакетов.
Если все характеристики алюминиевого окна устраивают вас, и вы решите его купить, помимо внимательного выбора компании, обязательно обращайте свое внимание на то, что цена профиля будет зависеть от:
- Толщины (с дополнительной толщиной приходит дополнительное тепло и шумопоглощение);
- Комплектующих (само окно прослужит вам всю жизнь, время от времени заменять надо будет только фурнитуру, поэтому предпочтительно сразу выбирать качественную);
- Количества камер в стеклопакете (чем больше – тем тише и теплее, поэтому для комнат выбирайте конструкции с 4-5 камерами).
Раздвижные модели от производителя
Раздвижные окна Алютех также доступны для покупателей. Современная система открывания позволяет использовать раздвижные окна не только для балконов, но и монтировать их в жилых помещениях, так как створка будет прилегать плотно. В результате помещение не будет быстро остывать, когда она находится в закрытом положении. Раздвижные окна удобны тем, что позволяют значительно сэкономить место, так как створка при открывании практически не требует свободного пространства. Такие окна смотрятся стильно, имеют привлекательный внешний вид.
Окна Алютех являются грамотным решением для тех, кто хочет установить прочные, пожароустойчивые, теплые и надежные конструкции, дающие множество преимуществ.
https://youtube.com/watch?v=yoJGlB7wdwg
Стоит ли ставить алюминий на веранду
Металлический профиль предназначен главным образом для защиты помещения от осадков, ветра, пыли. Морозный воздух не проникнет внутрь, даже если рамы будут оснащены панорамными стеклопакетами. Как следствие, комнатная температура будет плюсовой. Такие условия вполне благоприятны для поддержания в хорошем состоянии отделки помещения, выращивания цветов и хранения вещей.
Поскольку веранда находится на границе улицы и жилого отапливаемого пространства, она будет исполнять роль воздушного тамбура между этими зонами.
Если вы планируете использовать помещение только летом, в соответствии с его прямым предназначением, можете смело остеклять его алюминиевым профилем. Чтобы сделать пребывание на веранде максимально комфортным, установите противомоскитные сетки.

Если террасу или веранду планируется превратить в зимний сад, нужно выбрать алюминиевое холодное остекление. Владельцам небольших террас вытянутой формы также следует подумать об установке раздвижных окон. В жаркое время года они обеспечат постоянный доступ свежего воздуха, причем такое остекление создаст визуальный эффект отсутствия створок. Вы даже не заметите, что холодные окна открыты, поскольку внутренне пространство не будет занято распахнутыми рамами.
Виды профилей
На сегодняшний день существует 2 большие группы алюминиевых систем:
- Холодные (испанская фирма Проведал);
- Теплые (Newtek, Alumark, Alutech, Schuco, Виднал).
Остекление фирмы Проведал также бывает с терморазрывом, то есть тёплым.
Базовые характеристики системы Newtek: стеклопакет толщиной 36 — 40 мм, отличная звукоизоляция до 29 дБ благодаря вакууму между стеклами, прочность.
Окна Alumark s70 оснащены стеклопакетами толщиной 16 — 54 мм. Звукоизоляция до 35 дБ.
Система Alutech обеспечит защиту от шума до 42 дБ при монтажной ширине 70 мм.
Теплое алюминиевое остекление профилем фирмы Виндал имеет много преимуществ, поскольку балкон, остекленный российской системой, будет лучше приспособлен к нашим погодным условиям. Технические характеристики профилей VIDNAL отличаются в зависимости от серии. Например, Виндал V60 W оснащен стеклопакетом толщиной 42 мм, Виндал V68 имеет повышенную теплоизоляцию при монтажный глубине 68 мм. Система VIDNAL V72 позволяет использовать необычные типы открывания (раздвижные окна и складные порталы по типу «гармошка»).
Еще больше вариантов открывания предлагает немецкая фирма Schuco. Профили этой марки являются очень теплыми и качественными.
Если у вас балкон или лоджия с прочным металлическим парапетом и надежной укрепленной плитой, смело заказывайте остекление балкона теплым алюминиевым профилем цена которого примерно в 3 раза выше конструкции холодного типа. Зато вы получите прочную долговечную систему, которой не страшны ни механические, ни химические повреждения, которая не выделяет токсичных веществ при возгорании и сохраняет привлекательный вид долгие годы.
Теплый алюминий используется и в панорамном остеклении балкона. Причем металл предпочтительнее, когда нужно установить окна от пола до потолка. Он в разы прочнее любого ПВХ профиля и не деформируется даже при сильных ветровых нагрузках. При этом алюминиевые рамы тоньше металлопластиковых, а значит через балкон будет проникать еще больше света.
Как правильно осуществлять замер и расчет?
Дизайнерские решения
Возможности производства ГК «АЛЮТЕХ» позволяют изготавливать окна самой разной формы — круглые или прямоугольные, трапециевидные или арочные. Размерный ряд профиля серии ALT W72 дает возможность реализовывать окна с высотой створок до 2,5 метров (для вентиляционных сворок — до 3 метров).
При этом возможна окраска профилей порошковыми красками на полимерной основе в любой цвет по каталогу RAL. Покрытие может иметь разную степень блеска. Составы применяются только экологически безопасные, устойчивые к условиям эксплуатации снаружи и внутри дома.
Интересный вариант для оформления конструкций — анодирование, позволяющие придать профилю один из 9 оттенков. Образуемая оксидная пленка обеспечивает антикоррозионную защиту рамам в 2 раза более надежную, чем после формирования патины в естественных условиях. При этом подчеркивается фактура металла, что особенно актуально для популярного стиля хай-тек.

Пример цветного алюминиевого профиля после анодированияИсточник alutech-group.com
Декорирование — не менее интересное решение для оформления профилей. В этом случае на них наносится полимерное декоративное покрытие под дерево. Цвета и фактуры предлагаются на выбор: вишня, орех, золотой либо ирландский дуб, а также белый ясень.
Ассортимент фурнитуры представлен образцами от ведущих производителей из Европы. Можно выбрать ручки, петли и доводчики с видимым или скрытым монтажом. Возможна установка автоматической системы управления створками.
Видео описание
В этом видео представлен общий обзор технических характеристики и дизайнерских решений окон «АЛЮТЕХ»:
Коротко о главном
Алюминиевый профиль серии ALT W72 отличается от «холодных» решений наличием терморазрыва, который заполняется специальными вставками с низким коэффициентом теплопроводности. Использование терморазрыва позволяет решить проблему теплопотерь через окна, что особенно актуально для остекления частного дома.
Из профиля ALT W72 могут быть изготовлены как классические, так и французские окна, конструкции для остекления проемов высотой до 2,5 метров с глухими, скрытыми или вентиляционными створками.
Герметичность и звукоизоляция окон «АЛЮТЕХ» обеспечиваются двухконтурным или трехконтурным уплотнителем, который на углах не загибается, а соединяется с помощью специальных элементов.
Для исключения скапливания дождевой воды или конденсата внутри конструкций предусмотрена дренажная система видимого или скрытого типа.
Для обеспечения безопасности дома в зоне остекления предусматривается установка противовзломной фурнитуры и штапиков, а также механизмов с дополнительными точками запирания.
Чтобы исключить риск самостоятельного открывания окна ребенком, устанавливаются ручки с логическим открыванием или с замком, монтируются конструкции с узкими вентиляционными створками или закрепляется стеклянное ограждение (для французских окон).
Долговечность окон «АЛЮТЕХ» обеспечивается за счет профиля, изготавливаемого с соблюдением международных стандартов, нанесения особого покрытия и использования проверенной фурнитуры от ведущих европейских производителей.
Диапазон решений с теплым алюминием
Усиленный алюминиевый профиль – это основа для целого ряда эффектных решений, которые способны украсить фасад, окна, балконы и даже кровли жилых домов и построек коммерческой направленности:
- зимние сады (основное условие для существования зимнего сада или оранжереи – достаточное количество солнечного света – каркасная конструкция из алюминия, стекла или поликарбоната её обеспечивает);
- светопрозрачные навесы, козырьки и перегородки (все перечисленные типы конструкций изготавливаются на базе одного и того же профиля, детали которого отличаются лишь длиной и сечением);
- фасадное сплошное остекление (один из самых популярных сегодня видов отделки фасадов для бизнес-центров, учреждений, офисных зданий – каркас из алюминиевого мощного профиля служит основой для установки стекол, часто – с изменяемой прозрачностью или в энергосберегающем исполнении);
- входные группы (входная группа на основе алюминиевого каркаса и триплекса – это эффектный и надежный вариант оформления входа в любое здание).
Наконец, алюминиевый профиль используется и для остекления балконов и лоджий – сечение профиля таково, что в него можно установить достаточно серьезный стеклопакет, обеспечивающий неплохую теплоизоляцию. На базе «теплого алюминия» создаются и панорамные варианты остекления – с раздвижными створками.
Особенности светопрозрачных конструкций из «теплого алюминия»
Универсальность в использовании каркаса (и как часть стены, и как пристройка, и как кровля или её часть, и как входная группа) обусловлена, во многом, легкостью и прочностью алюминия, а также возможностью использовать для остекления широкий спектр светопрозрачных материалов. Это не только стекло (триплекс, энергосберегающее, поляризующееся и т.д.) но и поликарбонат, а также пластик.
В умелых руках алюминиевый профиль в сочетании с тщательно подобранным остеклением и фурнитурой творят чудеса. И компания «Окна Просвет» располагает такими руками – наши специалисты реализуют проекты остекления и фасадных работ на базе «теплого алюминия» уже давно.
Этапы монтажа пластиковых окон в компании Окна Просвет:
- Демонтаж старых окон.
- Подготовка проема к установке.
- Профессиональная установка окна.
- Установка пластиковых окон при остеклении коттеджей.
- Остекление теплый алюминий.
- Установка отлива.
- Заделка монтажных швов.
- Установка подоконников.
- Установка откосов.
- Установка противовзломной и скрытой фурнитуры.
- Установка москитных сеток, жалюзи и блокирующих замков.
- Заключительный этап: подгонка, герметизация и отделка окон.
По вопросам монтажа оконных систем звоните по телефонам в Москве: +7 (495) 272-000-2.
Основные производители
Немецкая фирма Schuco (Шуко) – признанный лидер по производству тёплого алюминиевого профиля. Компания предлагает более 20 тыс. наименований профилей и комплектующих, что позволят реализовать проект любой сложности. Другие известные европейские производители тёплого профиля из алюминия: Reynaers, RS Sistem, Metra, Indinvest.

Из отечественных производителей достойное место на рынке занимает фирма Alutech (Алютех). Компания не может предложить такое разнообразие ассортимента, как западные конкуренты, зато её продукция выгодно отличается стоимостью при высоком уровне качества. Другие российские марки – «Балтийский алюминий», «КраМЗ».
Современное окно – это высокотехнологичное изделие с множеством функций. Всё более широкую популярность приобретает тёплое алюминиевое остекление – изделия отлично подходит для российских условий, отличается высокими показателями теплоизоляции, прочности и долговечности. Несмотря на более высокую стоимость, во многих случаях тёплые алюминиевые окна предпочтительней, чем пластиковые – например, при остеклении большой площади лоджии или балкона, витрин магазинов.
Подписаться
Полезно2Бесполезно
Окна из теплого алюминия
В последние года все чаще можно услышать об остеклении коттеджей или загородных домов окнами из теплого алюминия. Что же представляют из себя окна из теплого алюминия и чем отличаются от простых окон или окон из холодного алюминия?
Прежде всего, стоит отметить, что окнами из теплого алюминия называют конструкции из алюминиевого сплава с терморазрывом. Иными словами, поскольку алюминий является отличным мостом холода и имеет низкие показатели теплопроводности, он почти не сохраняет тепло. По этой причине окна из холодного алюминия без термовставки используют там, где требования к теплоизоляции минимальны. К онам из теплого алюминия с термовставкой предъявляют значительно более высокие требования . Сама конструкция профиля для теплых алюминиевых окон представляет из себя два профиля из алюминия с камерами соединенных между собой термовставкой из твердых пластмасс армированных стекловолокном. За счет такой конструкции достигаются превосходные показатели прочности и жесткости рамы и створки окна из теплого алюминия. По этой же причины алюминиевые окна с термовставкой называют окнами из теплого алюминия
Стоит отметить некоторые основные показатели окон из теплого алюминия:
- Окна из теплого алюминия обладают отличными прочностными показателями. Жесткость таких окон позволяет проектировать кона больших размеров без потери их геометрии в дальнейшем.
- Окна из теплого алюминия почти не имеют линейных расширений в следствие нагрева на солнце, в отличии например от окон из ПВХ, у которых этот параметр в несколько раз больше. По этой же причине окна из теплого алюминия обеспечивают равномерный прижим створки по всему периметру в течение всего срока службы.
- В силу своих прочностных показателей, окна и двери из теплого алюминия могут без каких либо опасений использоваться в местах с большим трафиком людей.
- Так же, как и любые другие окна, окна из теплого алюминия могут быть задекорированы в любой цвет по шкале RAL а так же возможно нанесение ламинации или покраска с имитацией текстуры дерева. Стоит отметить что надежность и долговечность слоя покраски значительно выше чем у окон из ПВХ например по причине отсутствия линейных расширений материала, из которого изготовлены окна.
- У окон из дверей из алюминиевого сплава – теплого алюминия высокий уровень экологичности и пожаростойкости.
- Срок эксплуатации окон из теплого алюминия не менее 70 лет.
- Устойчивость конструкции окна из теплого алюминия к воздействию газов, кислот, солнечной радиации.
При всех очевидных плюсах окон и дверей из теплого алюминия, есть у них и недостатки. Недостатка у таких конструкций всего два:
- Низкие показатели сопротивления теплопередаче алюминиевых окон , среднее сопротивление теплопередаче алюминиевого окна Alutech W62 – 0.35-0.66м2 °С/Вт это при том, что у самого простого эконом профиля ПВХ 60 мм этот же показатель не менее 0,5-0,75м2 °С/Вт.
- Высокая стоимость окон из теплого алюминия продиктована сложностью производства оконных и дверных профилей, а так же стоимостью самого алюминия, их которого производят алюминиевые окна.
Виды открывания и конфигурация окон из теплого алюминия
Обязательно стоит отметить что окна из теплого алюминия могут быть произведены на заводе в любой конфигурации и любой формы, включая арки и трапеции. При изготовлении окон из теплого алюминия используется качественная европейская фурнитура Savio Giesse .Заказывая окна и двери из теплого алюминия можно быть уверенным в их качестве и надежности.
Сделаем маленький вывод
Первое, что вы должны были уже для себя уяснить — это то, что данный процесс не отнимет у вас много сил и денег, если вы будете следовать поставленным инструкциям и не захотите экономить на тепле. Учитесь на ошибках других людей. Одну из них я описал в начале статьи, а о следующей я повествовать не планирую, ведь уверен, что мои советы станут для вас полезными.
Основная ошибка, которую допускают — это желание всегда экономить. Думая о том, что сейчас это не пригодится, а сделать потом не составит труда, люди теряют драгоценные денежные средства, тратя их на бесполезные действия в виде демонтажа и повторной установки.
Берегите не только свой кошелек, но и свое здоровье, которое будет определенно портиться не только от чрезмерных физических нагрузок, но и от нервотрепок.
Друзья, помните, что экономить нужно в меру и на допустимых вещах. Не утеплив какую-либо часть квартиры, вы можете потратить колоссальное количество средств на отопление или покупку дополнительных источников обогрева. Да, они всегда пригодятся, но не забывайте, что — это часть квартиры или офиса, которая соприкасается с внешним миром каждой своей стороной, а также это единственное место, где запрещено устанавливать радиаторы. Борьба с холодом там — битва, которую надо выигрывать еще до ее начала.
Застройщики жилых микрорайонов в крупных городах, областных центрах и даже мелких населенных пунктах сдают в эксплуатацию дома, имеющие типовое остекление балконов и лоджий. Стандартная схема его выполнения – установка каркаса из алюминиевого профиля и монтаж в оконные створки одинарного листового стекла. Связано это с тем, что по существующим стандартам и строительным нормативам балконы и лоджии не являются жилыми помещениями, а выполняют вспомогательные функции и поэтому не нуждаются в утеплении. Такая конструкция и с финансовой точки зрения является наиболее экономичной для застройщика и снимает с него ответственность за недоделки, которые могут возникнуть при монтаже более дорогого и требовательного к качеству работ теплого остекления.
Рис. 1 Конструкция холодных алюминиевых окон
В последнее время модной тенденцией является утепление балкона с холодным остеклением, позволяющее жильцам не только экономить тепловую энергию, которая подлежит учету и соответствующей оплате, но и расширить полезную жилую площадь квартиры. На теплом балконе можно устроить мастерскую, сделать рабочий кабинет, создать цветочную или овощную оранжерею.
При этом перед домовладельцами встает вопрос: как утеплить балконы с холодным остеклением. Если стены и парапет можно покрыть эффективным современным утеплителем и сверху обшить отделкой из ряда распространенных и популярных материалов, то решение проблемы холодного остекления намного сложнее.
Ситуация усугубляется и тем, что любые изменения и переделки типового остекления могут привести к изменению внешнего вида фасада здания, а реконструкция может не пройти согласование в соответствующих службах. Как следствие – замена холодного остекления на теплое может быть запрещена. А в случае проведения работ без разрешения могут последовать штрафные санкции и судебный процесс, в результате которого обычно выносится решение о демонтаже установленного остекления.
Не существует четкой юридической нормативной базы по вопросу остекления балконов, поэтому сложно ответить, надо ли об этом заявлять и есть ли смысл в затратном оформлении разрешительных документов. Действующее законодательство предусматривает процедуру официального оформления ремонтных работ в ряде инстанций при проведении в квартирах перепланировки. Установка, демонтаж, перекраска и изменение конфигурации балконных рам не относятся к реконструкции или работам по перепланировке, поэтому возможность их проведения и законность установки определяется чиновниками на местах или представителями архитектурных служб. Нарекания к собственникам могут возникнуть в случаях, если во время модернизации будут изменены цвет всего профильного каркаса или форма оконных рам.
Рис. 2 Застекление балкона окнами с установкой в холодный профиль





































